最新录用栏目展示本刊经同行评议确定正式录用的文章,这些文章目前处在编校过程,尚未确定卷期及页码,但可以根据DOI进行引用。
显示方式:
优先发表栏目展示本刊经同行评议确定正式录用的文章,这些文章目前处在编校过程,尚未确定卷期及页码,但可以根据DOI进行引用。
显示方式:
当前状态:
, 最新更新时间: ,
doi: 10.11899/zzfy20240053
摘要:
对伤亡人员的救治是震后应急救援工作的首要内容,医疗系统作为救治伤员的主力,其震后的功能损失和恢复能力决定了震后救援的效率。本文选取区域尺度的医疗系统,通过情景构建的方法研究强震情景下的区域协调救援。首先对震中城市的震后供需状态、医疗系统救援能力进行分析,并考虑道路系统损失对震后救援的影响,分析城市震后应急救援能力。在城市医疗系统不足以支撑自身救援的情况下,考虑区域其他城市协同救援,对周边城市医疗系统救援能力进行分析,协同救援的城市需遵循城市内外两层供需平衡的逻辑,统筹考虑周边城市的资源容量限制与总救援时间最小化问题,从而选择最优救援方案,为京津冀区域强震情景下协同救援提供思路。
对伤亡人员的救治是震后应急救援工作的首要内容,医疗系统作为救治伤员的主力,其震后的功能损失和恢复能力决定了震后救援的效率。本文选取区域尺度的医疗系统,通过情景构建的方法研究强震情景下的区域协调救援。首先对震中城市的震后供需状态、医疗系统救援能力进行分析,并考虑道路系统损失对震后救援的影响,分析城市震后应急救援能力。在城市医疗系统不足以支撑自身救援的情况下,考虑区域其他城市协同救援,对周边城市医疗系统救援能力进行分析,协同救援的城市需遵循城市内外两层供需平衡的逻辑,统筹考虑周边城市的资源容量限制与总救援时间最小化问题,从而选择最优救援方案,为京津冀区域强震情景下协同救援提供思路。
当前状态:
, 最新更新时间: ,
doi: 10.11899/zzfy20250065
摘要:
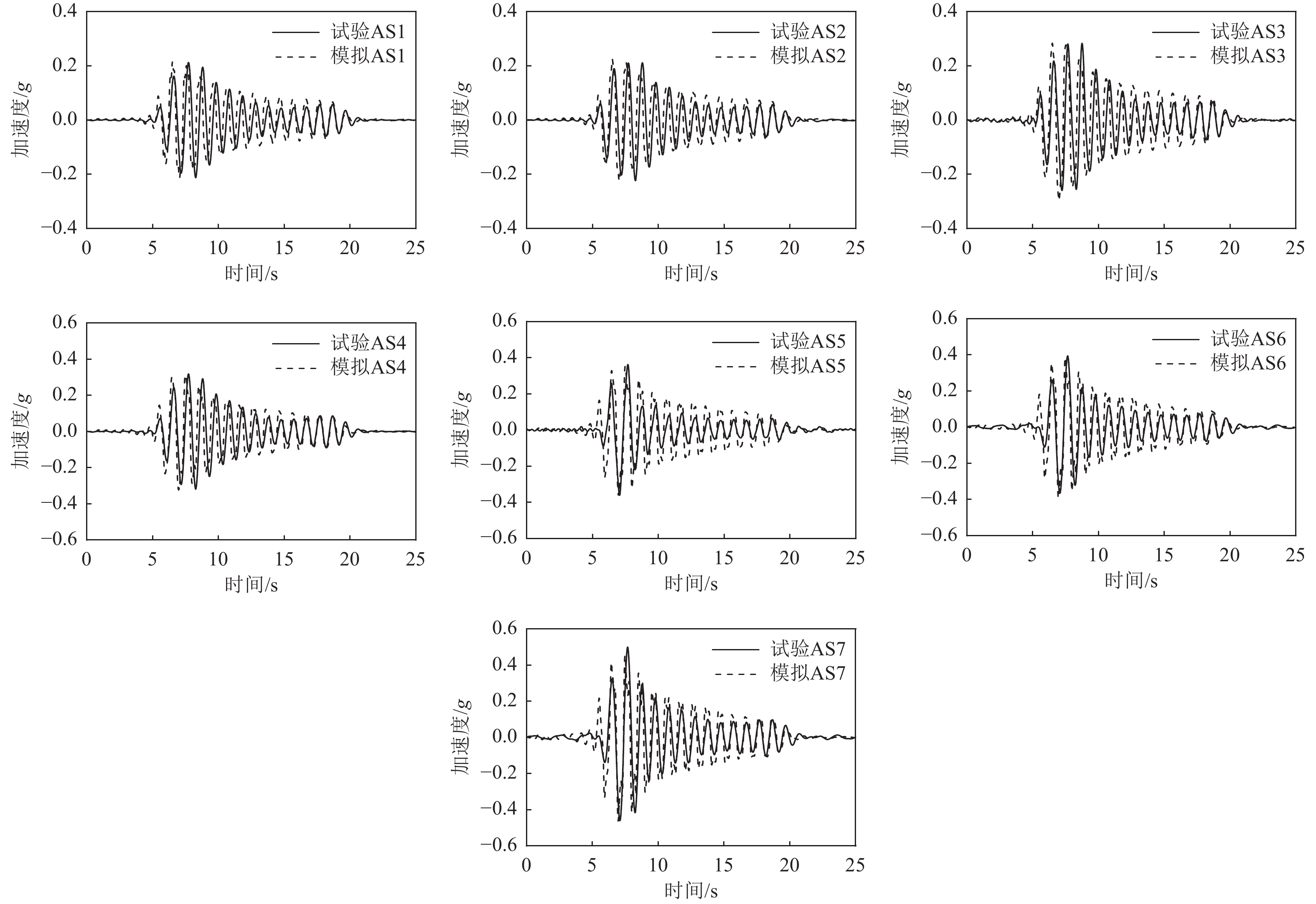
为了探究液化场地中高层建筑-桩筏基础-地下结构动力响应规律,本文设计并制作了高层建筑-桩筏基础–地下结构体系缩尺模型,利用大型离心机振动台设备,开展了液化场地中高层建筑-桩筏基础-地下结构体系动力响应试验研究。重点分析了在不同强度地震作用下,可液化场地土、高层建筑、桩筏基础和地下结构的动力响应特性,主要包括土体孔隙水压力、地基加速度、位移沉降、土压力等,并深入探讨了地基液化对高层建筑-桩筏基础-地下结构动力响应的影响。试验结果表明,高层建筑-桩筏基础下卧地基的液化程度最高;强震作用下桩筏基础与地下结构的存在,在一定程度上加速了二者之间土体孔隙水的排出;小震作用下筏板和地下结构的加速度响应放大,在强震作用下,由于地基液化对邻近结构的影响,筏板和地下结构的加速度响应先放大后减小;试验场地整体发生了不均匀沉降,地下结构上的土体存在明显的隆起变形;在大震作用下,地基液化对桩筏基础与地下结构有一定的减震作用。浅层土反应谱的短周期成分地震响应显著,深层土反应谱的长周期成分地震响应显著。
为了探究液化场地中高层建筑-桩筏基础-地下结构动力响应规律,本文设计并制作了高层建筑-桩筏基础–地下结构体系缩尺模型,利用大型离心机振动台设备,开展了液化场地中高层建筑-桩筏基础-地下结构体系动力响应试验研究。重点分析了在不同强度地震作用下,可液化场地土、高层建筑、桩筏基础和地下结构的动力响应特性,主要包括土体孔隙水压力、地基加速度、位移沉降、土压力等,并深入探讨了地基液化对高层建筑-桩筏基础-地下结构动力响应的影响。试验结果表明,高层建筑-桩筏基础下卧地基的液化程度最高;强震作用下桩筏基础与地下结构的存在,在一定程度上加速了二者之间土体孔隙水的排出;小震作用下筏板和地下结构的加速度响应放大,在强震作用下,由于地基液化对邻近结构的影响,筏板和地下结构的加速度响应先放大后减小;试验场地整体发生了不均匀沉降,地下结构上的土体存在明显的隆起变形;在大震作用下,地基液化对桩筏基础与地下结构有一定的减震作用。浅层土反应谱的短周期成分地震响应显著,深层土反应谱的长周期成分地震响应显著。
当前状态:
, 最新更新时间: ,
doi: 10.11899/zzfy20250066
摘要:
本文以北川王家岩南侧沈家包抗滑桩加固工程为背景,通过现场低应变测试、混凝土强度测试、FLAC 3D数值模拟及拟静力理论计算,系统研究了强震作用下抗滑桩加固边坡的动力响应规律。结果表明,随输入地震动强度增大,PGA放大系数呈非线性衰减特征,抗滑桩可以显著抑制边坡动力放大效应,其阻滑能力随地震动峰值增强而提升,地震作用下桩顶位移9.78 cm满足规范容许限值;抗滑桩内力分布特征显示,桩身剪力与弯矩峰值位于滑面附近;参数敏感性分析表明,桩长16 m、间距6.75 m为最优抗震设计参数;拟静力法计算得出桩身峰值剪力与峰值弯矩较数值模拟分别偏小2.93%和5.87%,建议抗震设计安全系数取1.2以上;研究揭示了抗滑桩在强震作用下的动力响应机理,为高烈度区边坡抗震设计提供了理论与技术支撑。
本文以北川王家岩南侧沈家包抗滑桩加固工程为背景,通过现场低应变测试、混凝土强度测试、FLAC 3D数值模拟及拟静力理论计算,系统研究了强震作用下抗滑桩加固边坡的动力响应规律。结果表明,随输入地震动强度增大,PGA放大系数呈非线性衰减特征,抗滑桩可以显著抑制边坡动力放大效应,其阻滑能力随地震动峰值增强而提升,地震作用下桩顶位移9.78 cm满足规范容许限值;抗滑桩内力分布特征显示,桩身剪力与弯矩峰值位于滑面附近;参数敏感性分析表明,桩长16 m、间距6.75 m为最优抗震设计参数;拟静力法计算得出桩身峰值剪力与峰值弯矩较数值模拟分别偏小2.93%和5.87%,建议抗震设计安全系数取1.2以上;研究揭示了抗滑桩在强震作用下的动力响应机理,为高烈度区边坡抗震设计提供了理论与技术支撑。
当前状态:
, 最新更新时间: ,
doi: 10.11899/zzfy20250069
摘要:
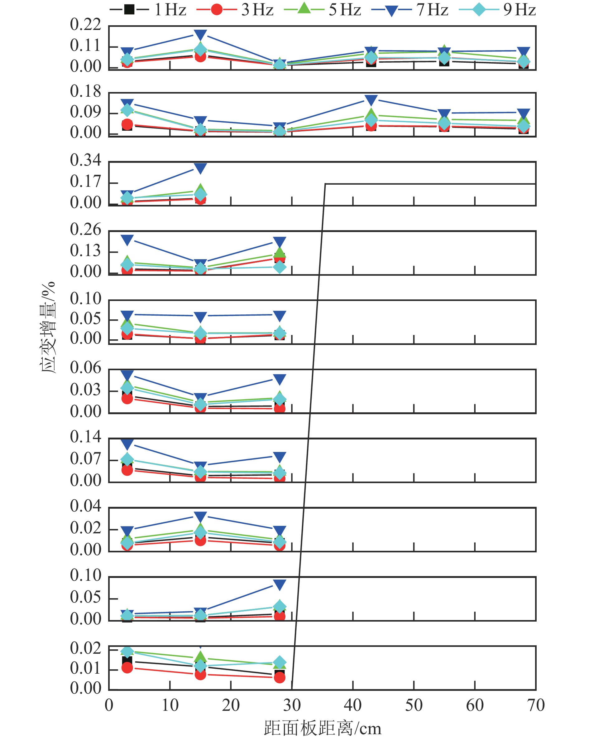
针对施工场地受限和地震频发区域中加筋土挡墙的应用需求,本研究通过开展机械连接式有限空间加筋土挡墙振动台试验,阐述了结构震害现象及墙体变形模式,分析了加速度响应、面板位移、筋材应变、潜在破裂面等力学行为变化特征。研究结果表明,挡墙加速度放大系数随着输入频率增大而增大,并沿墙高呈非线性分布,在墙顶处取得最大值。各工况结束后挡墙累积位移分别为1.09%H、1.28%H、2.05%H、10.96%H(H为挡墙高度),正弦波0.4 g结束后挡墙已发生中度破坏。筋材应变随输入频率增大而增大,并沿墙高呈非线性变化。潜在破裂面由墙趾出发,沿填料与边坡接触面发育;墙后机械连接处是结构薄弱处,设计施工时应进行相应加固。共振会使挡墙位移、筋材应变显著增加,导致挡墙破坏,工程中应避免结构发生该现象。本研究结果可为有限空间加筋土挡墙设计与施工提供参考,推动该结构在地震频发区的建设与应用。
针对施工场地受限和地震频发区域中加筋土挡墙的应用需求,本研究通过开展机械连接式有限空间加筋土挡墙振动台试验,阐述了结构震害现象及墙体变形模式,分析了加速度响应、面板位移、筋材应变、潜在破裂面等力学行为变化特征。研究结果表明,挡墙加速度放大系数随着输入频率增大而增大,并沿墙高呈非线性分布,在墙顶处取得最大值。各工况结束后挡墙累积位移分别为1.09%H、1.28%H、2.05%H、10.96%H(H为挡墙高度),正弦波0.4 g结束后挡墙已发生中度破坏。筋材应变随输入频率增大而增大,并沿墙高呈非线性变化。潜在破裂面由墙趾出发,沿填料与边坡接触面发育;墙后机械连接处是结构薄弱处,设计施工时应进行相应加固。共振会使挡墙位移、筋材应变显著增加,导致挡墙破坏,工程中应避免结构发生该现象。本研究结果可为有限空间加筋土挡墙设计与施工提供参考,推动该结构在地震频发区的建设与应用。
当前状态:
, 最新更新时间: ,
doi: 10.11899/zzfy20240031
摘要:
2023年12月18日23时59分,在甘肃省临夏回族自治州积石山县(35.7°N,102.79°E)发生6.2级地震,震源深度为10 km。此次地震造成震区大量房屋倒塌,151人遇难,979人受伤。甘肃积石山6.2级地震最大烈度评估为Ⅷ度(8度),Ⅷ度(8度)区面积331 km2,包含异常区面积15 km2(甘沟乡),本研究调查了青海震区不同烈度区的房屋震害及Ⅷ度(8度)区内3个异常地区。调查结果显示,Ⅷ度(8度)区土坯、土木房屋受损较为严重,砖混、框架结构破坏较轻。该区域内由于地形、建造等原因,导致甘沟乡破坏较为严重;金田村由于饱水原因导致黄土液化产生流滑,造成严重的人员伤亡;寨子山地区发育的大量裂缝需要进一步开展监测治理工作。根据以上震害分析,对未来灾后重建及后续震灾防御提出参考性建议。
2023年12月18日23时59分,在甘肃省临夏回族自治州积石山县(35.7°N,102.79°E)发生6.2级地震,震源深度为10 km。此次地震造成震区大量房屋倒塌,151人遇难,979人受伤。甘肃积石山6.2级地震最大烈度评估为Ⅷ度(8度),Ⅷ度(8度)区面积331 km2,包含异常区面积15 km2(甘沟乡),本研究调查了青海震区不同烈度区的房屋震害及Ⅷ度(8度)区内3个异常地区。调查结果显示,Ⅷ度(8度)区土坯、土木房屋受损较为严重,砖混、框架结构破坏较轻。该区域内由于地形、建造等原因,导致甘沟乡破坏较为严重;金田村由于饱水原因导致黄土液化产生流滑,造成严重的人员伤亡;寨子山地区发育的大量裂缝需要进一步开展监测治理工作。根据以上震害分析,对未来灾后重建及后续震灾防御提出参考性建议。
当前状态:
, 最新更新时间: ,
doi: 10.11899/zzfy20250062
摘要:
针对地震作用下双级加筋土挡墙临界台阶宽度不明、上下阶墙高选取随意,不利于加筋土挡墙推广应用的情况,基于双级模块式加筋土挡墙的振动台试验结果,建立FLAC 3D数值模型,研究了不同台阶宽度(10、20 、30、40、50、60 cm)、不同墙高比(上下阶墙体分别为3/7、4/6、1/1、6/4、7/3)下加筋土挡墙的墙面位移、加速度响应及地震土压力分布情况。结果表明,面板位移随台阶宽度的增加先减小后增大,最小值出现在台阶宽度为50 cm工况中;加速度放大系数沿墙高非线性递增,上阶挡墙在台阶宽度为40 cm和60 cm时出现加速度响应衰减;下阶墙体土压力在台阶宽度为50 cm时数值最小;上下阶挡墙墙高比为4/6时,墙面峰值位移最小;墙高比为6/4时,上阶挡墙的加速度放大系数最大,墙高比为1/1时,下阶挡墙的加速度放大系数最大;墙高比为7/3时,上阶挡墙的地震土压力值最大,墙高比为1/1时,下阶挡墙的地震土压力值最大。综合分析可知,墙高比为1/1时,临界台阶宽度在50 cm附近;当台阶宽度为20 cm时,上下阶墙体高度应有所区别,不宜均分,也不宜差距过大。研究成果可为双级加筋土挡墙工程设计中台阶宽度和上下阶墙高设置提供数据支撑。
针对地震作用下双级加筋土挡墙临界台阶宽度不明、上下阶墙高选取随意,不利于加筋土挡墙推广应用的情况,基于双级模块式加筋土挡墙的振动台试验结果,建立FLAC 3D数值模型,研究了不同台阶宽度(10、20 、30、40、50、60 cm)、不同墙高比(上下阶墙体分别为3/7、4/6、1/1、6/4、7/3)下加筋土挡墙的墙面位移、加速度响应及地震土压力分布情况。结果表明,面板位移随台阶宽度的增加先减小后增大,最小值出现在台阶宽度为50 cm工况中;加速度放大系数沿墙高非线性递增,上阶挡墙在台阶宽度为40 cm和60 cm时出现加速度响应衰减;下阶墙体土压力在台阶宽度为50 cm时数值最小;上下阶挡墙墙高比为4/6时,墙面峰值位移最小;墙高比为6/4时,上阶挡墙的加速度放大系数最大,墙高比为1/1时,下阶挡墙的加速度放大系数最大;墙高比为7/3时,上阶挡墙的地震土压力值最大,墙高比为1/1时,下阶挡墙的地震土压力值最大。综合分析可知,墙高比为1/1时,临界台阶宽度在50 cm附近;当台阶宽度为20 cm时,上下阶墙体高度应有所区别,不宜均分,也不宜差距过大。研究成果可为双级加筋土挡墙工程设计中台阶宽度和上下阶墙高设置提供数据支撑。
当前状态:
, 最新更新时间: ,
doi: 10.11899/zzfy20250064
摘要:
液化场地下高层建筑桩基抗震性能一直是防灾减灾工程中的热点问题,本文通过开展液化场地-桩筏基础-高层建筑结构体系动力响应大型离心机振动台试验,并基于STKO软件建立三维数值模型,通过对比土体超孔压比、土体加速度、上部建筑结构加速度和桩基弯矩等,验证数值模型的正确性和有效性;基于已验证的数值模型,输入不同峰值加速度的El Centro地震波,探究地震动强度对高层建筑桩筏基础的动力响应影响。结果表明,在相同地震波工况下,随着楼层的升高,楼层峰值加速度、最大位移逐渐增大,同时楼层峰值加速度放大倍数不断增加;在相同楼层处,随着地震动峰值的增加,楼层峰值加速度不断增大,楼层最大位移逐渐增大,但楼层峰值加速度放大倍数不断减小;小震作用下,土体并未发生液化,随着地震波峰值的增加,超孔压比上升的速度也随之加快,且土体超孔压比的波动程度随着地震动峰值的增加而变大;在小震作用下,桩身顶部会出现弯矩较大值,随着地震动峰值的增加,桩身弯矩峰值点位置下移,大震作用下,角桩、边桩及中桩的桩弯矩峰值均出现在液化层与非液化层交界处附近。
液化场地下高层建筑桩基抗震性能一直是防灾减灾工程中的热点问题,本文通过开展液化场地-桩筏基础-高层建筑结构体系动力响应大型离心机振动台试验,并基于STKO软件建立三维数值模型,通过对比土体超孔压比、土体加速度、上部建筑结构加速度和桩基弯矩等,验证数值模型的正确性和有效性;基于已验证的数值模型,输入不同峰值加速度的El Centro地震波,探究地震动强度对高层建筑桩筏基础的动力响应影响。结果表明,在相同地震波工况下,随着楼层的升高,楼层峰值加速度、最大位移逐渐增大,同时楼层峰值加速度放大倍数不断增加;在相同楼层处,随着地震动峰值的增加,楼层峰值加速度不断增大,楼层最大位移逐渐增大,但楼层峰值加速度放大倍数不断减小;小震作用下,土体并未发生液化,随着地震波峰值的增加,超孔压比上升的速度也随之加快,且土体超孔压比的波动程度随着地震动峰值的增加而变大;在小震作用下,桩身顶部会出现弯矩较大值,随着地震动峰值的增加,桩身弯矩峰值点位置下移,大震作用下,角桩、边桩及中桩的桩弯矩峰值均出现在液化层与非液化层交界处附近。
当前状态:
, 最新更新时间: ,
doi: 10.11899/zzfy20250063
摘要:
北京时间2025年1月21日0时17分,台湾省台南市发生6.2级地震,震中位于北纬23.24°,东经120.51°,震源深度为10 km。此次地震最大烈度达Ⅸ度,高烈度区主要分布在嘉义县和台南市,但整体震害较轻,具体表现为:部分房屋倒塌或受损严重,结构性破坏主要集中于梁柱构件;非结构性破坏则主要涉及装饰材料、填充墙及吊顶等构件。生命线系统中,桥梁受损较轻,主要破坏形式为桥台变形,道路破坏则以路面隆起与龟裂为主。次生灾害主要包括火灾、电力中断与山体滑坡,其中山体滑坡分布广泛,导致部分生命线设施受损及交通中断等问题。震害调查表明,地震动强度高、房屋建筑质量不高、抗震措施不完备是造成本次地震破坏的主要原因。本文将此次地震的震害特征与2016年高雄美浓6.6级地震进行对比,讨论了美浓地震破坏更严重的原因。此外,本文对比分析了美国地质调查局和本研究团队开发的地震损失评估模型在此次地震中的表现,发现美国地质调查局第一时间发布的经济损失评估偏于保守,人员伤亡评估过于模糊,而本研究团队开发的模型精度更高。
北京时间2025年1月21日0时17分,台湾省台南市发生6.2级地震,震中位于北纬23.24°,东经120.51°,震源深度为10 km。此次地震最大烈度达Ⅸ度,高烈度区主要分布在嘉义县和台南市,但整体震害较轻,具体表现为:部分房屋倒塌或受损严重,结构性破坏主要集中于梁柱构件;非结构性破坏则主要涉及装饰材料、填充墙及吊顶等构件。生命线系统中,桥梁受损较轻,主要破坏形式为桥台变形,道路破坏则以路面隆起与龟裂为主。次生灾害主要包括火灾、电力中断与山体滑坡,其中山体滑坡分布广泛,导致部分生命线设施受损及交通中断等问题。震害调查表明,地震动强度高、房屋建筑质量不高、抗震措施不完备是造成本次地震破坏的主要原因。本文将此次地震的震害特征与2016年高雄美浓6.6级地震进行对比,讨论了美浓地震破坏更严重的原因。此外,本文对比分析了美国地质调查局和本研究团队开发的地震损失评估模型在此次地震中的表现,发现美国地质调查局第一时间发布的经济损失评估偏于保守,人员伤亡评估过于模糊,而本研究团队开发的模型精度更高。
当前状态:
, 最新更新时间: ,
doi: 10.11899/zzfy20250061
摘要:
针对地震引起的地基土变形失效导致的桩-土脱空及桩基产生较大侧向变形问题,使用环境友好的新型绿色材料木质素对黄土工程场地的地基土进行加固。基于室内试验和数值模拟,考虑桩-土相互作用和改良黄土的加固深度,对木质素加固黄土工程场地的桩基抗震性能进行了研究。结果表明:(1)改良土层显著提高了桩周土体的横向约束刚度,增强了桩-土体系的整体动力刚度,从而提升了桩基抵抗高阶振动的能力,导致高阶频率向高频偏移,整体表现为频率上升。(2)改良土层可改变桩身反弯点位置,且两侧正负弯矩极值的绝对差值随改良深度h的增加先减后增;随h增大桩身位移整体呈减小模式,h=12 m时的桩头位移仅为h=0 m的27%。(3)改良土层可减弱桩-土相互作用系统的加速度响应,h=4 m时桩顶中心点的加速度放大系数最小,桩周土对桩基的支撑最强。(4)改良深度超过1 m即可将桩基的抗震性能从中等损伤Ⅱ类水平改善至基本弹性Ⅰ类水平;h=4 m时桩-土相互作用体系在震后的损伤及位移较小,综合考虑桩身震后的损伤、位移及地基土加固的经济性,可认为针对类似本文桩的桩长径比为20、配筋率为2%的模型,最优加固深度为4 m。(5)地震波的频谱特性对桩身弯矩的影响主要体现在桩身最大弯矩的最大值及反弯点位置,对桩身位移的影响表现在其沿桩身分布曲线的拐点数量及同一高度处桩身位移的数值差上,低频越突出,高频成分越丰富的地震波对桩身弯矩的影响越大,对桩身位移的影响反而较小。相关结论可为类似桩基加固的抗震性能提供参考。
针对地震引起的地基土变形失效导致的桩-土脱空及桩基产生较大侧向变形问题,使用环境友好的新型绿色材料木质素对黄土工程场地的地基土进行加固。基于室内试验和数值模拟,考虑桩-土相互作用和改良黄土的加固深度,对木质素加固黄土工程场地的桩基抗震性能进行了研究。结果表明:(1)改良土层显著提高了桩周土体的横向约束刚度,增强了桩-土体系的整体动力刚度,从而提升了桩基抵抗高阶振动的能力,导致高阶频率向高频偏移,整体表现为频率上升。(2)改良土层可改变桩身反弯点位置,且两侧正负弯矩极值的绝对差值随改良深度h的增加先减后增;随h增大桩身位移整体呈减小模式,h=12 m时的桩头位移仅为h=0 m的27%。(3)改良土层可减弱桩-土相互作用系统的加速度响应,h=4 m时桩顶中心点的加速度放大系数最小,桩周土对桩基的支撑最强。(4)改良深度超过1 m即可将桩基的抗震性能从中等损伤Ⅱ类水平改善至基本弹性Ⅰ类水平;h=4 m时桩-土相互作用体系在震后的损伤及位移较小,综合考虑桩身震后的损伤、位移及地基土加固的经济性,可认为针对类似本文桩的桩长径比为20、配筋率为2%的模型,最优加固深度为4 m。(5)地震波的频谱特性对桩身弯矩的影响主要体现在桩身最大弯矩的最大值及反弯点位置,对桩身位移的影响表现在其沿桩身分布曲线的拐点数量及同一高度处桩身位移的数值差上,低频越突出,高频成分越丰富的地震波对桩身弯矩的影响越大,对桩身位移的影响反而较小。相关结论可为类似桩基加固的抗震性能提供参考。
当前状态:
, 最新更新时间: ,
doi: 10.11899/zzfy20240255
摘要:
为研究摇摆分量对高层钢框架结构抗震性能的影响,本文以不同刚度的两栋20层钢框架结构作为研究对象,选取89条近断层脉冲型地震动平动记录,利用频域法生成相应的地震动摇摆分量时程,研究了不同刚度的两栋高层钢框架结构在平动工况和平动-摆动耦合工况下的结构动力响应,对比了不同工况下结构的地震易损性水平。结果表明,所有工况中刚性结构的楼层加速度均大于柔性结构,而层间位移角结果反之,且柔性结构的地震易损性曲线高于刚性结构。与平动工况相比,考虑摇摆分量影响时,刚性结构的层间位移角和楼层加速度的最大增量分别可达81.6%和90%,柔性结构的最大增量可达170%和144%。采用易损性中位值衡量易损性水平的变化,与平动工况相比,考虑摇摆分量影响时,易损性中位值出现显著降低,刚性和柔性结构的易损性中位值最大可降低42.4%和55.5%。对于刚性结构,极限状态等级越低,地震动摇摆分量对易损性中位值的影响越大;对于柔性结构,这一规律相反,结构的极限状态等级越高,地震动摇摆分量的影响越大。
为研究摇摆分量对高层钢框架结构抗震性能的影响,本文以不同刚度的两栋20层钢框架结构作为研究对象,选取89条近断层脉冲型地震动平动记录,利用频域法生成相应的地震动摇摆分量时程,研究了不同刚度的两栋高层钢框架结构在平动工况和平动-摆动耦合工况下的结构动力响应,对比了不同工况下结构的地震易损性水平。结果表明,所有工况中刚性结构的楼层加速度均大于柔性结构,而层间位移角结果反之,且柔性结构的地震易损性曲线高于刚性结构。与平动工况相比,考虑摇摆分量影响时,刚性结构的层间位移角和楼层加速度的最大增量分别可达81.6%和90%,柔性结构的最大增量可达170%和144%。采用易损性中位值衡量易损性水平的变化,与平动工况相比,考虑摇摆分量影响时,易损性中位值出现显著降低,刚性和柔性结构的易损性中位值最大可降低42.4%和55.5%。对于刚性结构,极限状态等级越低,地震动摇摆分量对易损性中位值的影响越大;对于柔性结构,这一规律相反,结构的极限状态等级越高,地震动摇摆分量的影响越大。
当前状态:
, 最新更新时间: ,
doi: 10.11899/zzfy20250124
摘要:
基于简单线性关系的分析方法在表征地震动影响因素时,往往导致预测结果与实测数据存在显著偏差。为克服这一局限性,本文基于生成式神经网络无需依赖先验地震学知识即可自动提取特征并生成完整地震动时程的优势,系统评估了三种典型生成式神经网络模型(变分自编码器VAE、生成对抗网络GAN和去噪扩散概率模型DDPM)在地震动模拟中的性能表现。研究采用PEER数据库中的1, 451条水平向地震动记录(源自23次独立地震事件)作为训练数据集,对三种模型进行统一训练和对比分析。模拟结果时域和频域的综合评估结果表明:三种模型中,DDPM展现出最优的模拟性能,GAN次之,而VAE表现相对欠佳。值得注意的是,GAN模拟结果呈现出显著的长周期成分增强特征,而VAE则表现出明显的持时延长现象。通过与四种经典地震动预测方程的对比研究发现,DDPM模拟结果与GMPEs预测值具有较好的一致性,但存在轻微的系统性低估趋势。
基于简单线性关系的分析方法在表征地震动影响因素时,往往导致预测结果与实测数据存在显著偏差。为克服这一局限性,本文基于生成式神经网络无需依赖先验地震学知识即可自动提取特征并生成完整地震动时程的优势,系统评估了三种典型生成式神经网络模型(变分自编码器VAE、生成对抗网络GAN和去噪扩散概率模型DDPM)在地震动模拟中的性能表现。研究采用PEER数据库中的1, 451条水平向地震动记录(源自23次独立地震事件)作为训练数据集,对三种模型进行统一训练和对比分析。模拟结果时域和频域的综合评估结果表明:三种模型中,DDPM展现出最优的模拟性能,GAN次之,而VAE表现相对欠佳。值得注意的是,GAN模拟结果呈现出显著的长周期成分增强特征,而VAE则表现出明显的持时延长现象。通过与四种经典地震动预测方程的对比研究发现,DDPM模拟结果与GMPEs预测值具有较好的一致性,但存在轻微的系统性低估趋势。
当前状态:
, 最新更新时间: ,
doi: 10.11899/zzfy20250120
摘要:
为解决竖向地震动预测不确定性较大的问题,利用NGA-West强地震动数据库,基于随机自适应神经模糊推理方法(ANFIS)建立竖向地震动强度预测模型,进而计算2022年1月8日青海门源Mw6.7地震的竖向地震动峰值加速度分布。在利用国家地震烈度速报与预警工程观测数据开展信度检验的基础之上,探讨近场强地震动的方向效应、场地放大效应及其成因机理。研究结果表明:(1)基于ANFIS方法的竖向地震动强度预测模型在门源Mw6.7地震竖向PGA预测过程中取得了较好的预测结果,其预测值与观测值的相关系数R约为0.809,均方根误差约为0.046,说明本文预测模型具有较好的可靠性,同时检验了其在我国中强破坏性地震预测中的适用性。(2)门源Mw6.7地震的竖向PGA预测值等值线整体上呈椭圆状,其长轴与发震断层走向具有较好的一致性,震中附近竖向PGA极大值约为376.3Gal。竖向PGA在随断层距增大而不断衰减的同时,呈现出较为显著的方向性效应以及一定程度上的近场大震饱和效应。(3)竖向地震动峰值加速度的场地放大效应相对弱于水平向地震动,随着的不断降低,竖向PGA相对于基岩(=1000m/s)场地的最大放大倍数约为1.14~1.27;大震条件(Mw=7.0)下软土场地(=100m/s)处放大系数约为0.79,呈现出一定的软土减震效应。
为解决竖向地震动预测不确定性较大的问题,利用NGA-West强地震动数据库,基于随机自适应神经模糊推理方法(ANFIS)建立竖向地震动强度预测模型,进而计算2022年1月8日青海门源Mw6.7地震的竖向地震动峰值加速度分布。在利用国家地震烈度速报与预警工程观测数据开展信度检验的基础之上,探讨近场强地震动的方向效应、场地放大效应及其成因机理。研究结果表明:(1)基于ANFIS方法的竖向地震动强度预测模型在门源Mw6.7地震竖向PGA预测过程中取得了较好的预测结果,其预测值与观测值的相关系数R约为0.809,均方根误差约为0.046,说明本文预测模型具有较好的可靠性,同时检验了其在我国中强破坏性地震预测中的适用性。(2)门源Mw6.7地震的竖向PGA预测值等值线整体上呈椭圆状,其长轴与发震断层走向具有较好的一致性,震中附近竖向PGA极大值约为376.3Gal。竖向PGA在随断层距增大而不断衰减的同时,呈现出较为显著的方向性效应以及一定程度上的近场大震饱和效应。(3)竖向地震动峰值加速度的场地放大效应相对弱于水平向地震动,随着的不断降低,竖向PGA相对于基岩(=1000m/s)场地的最大放大倍数约为1.14~1.27;大震条件(Mw=7.0)下软土场地(=100m/s)处放大系数约为0.79,呈现出一定的软土减震效应。
当前状态:
, 最新更新时间: ,
doi: 10.11899/zzfy20240507
摘要:
新疆中天山地质及构造条件复杂,某隧址埋深最大接近1336 m,探明隧址区地应力场特征和断层摩擦系数对隧址区稳定性评价具有重要工程及理论价值。本文基于隧址区内9个钻孔获得的37条实测地应力数据,通过统计及拟合数据,引入断层摩擦系数μ、地壳应力积累指标μm,并结合区域地震分布和震源机制等进行分析。研究表明,中天山隧址区最大水平主应力优势方向为N37°E,与区域构造应力场NNE方向相符;浅部地壳以水平构造应力为主,最大、最小水平主应力随深度线性增长梯度分别为0.024和0.017,应力状态以逆冲型为主,局部兼有走滑型。隧址区内断层摩擦系数μ分析揭示,其主要分布范围为0.15~0.3,表明大部分断层处于低强度状态,而F6断裂μ值达到0.39,明显高于其他断层,同时区内地壳应力积累指标μm近80%,应力积累不高,未达到临界滑动值0.5,但F6断裂处应力积累程度均高于0.5,说明F6断裂相较其它断层的应力积累更大,更具有活动性。结合NWW向断层附近地震频发及近年小震震源机制解特征,表明隧址区断层更易沿北西西向形成滑动。
新疆中天山地质及构造条件复杂,某隧址埋深最大接近
当前状态:
, 最新更新时间: ,
doi: 10.11899/zzfy20240196
摘要:
乌拉山山前盆地是河套断陷带的重要组成部分。探明乌拉山山前盆地内隐伏活动断裂的分布和晚第四纪活动特征,对于认识乌拉山山前盆地构造特征和震害防御具有重要意义。浅层地震勘探在乌拉山山前盆地内新发现1条隐伏活动断裂带——三湖断裂带,该断裂带由Fp3、Fp4、Fp5、Fp6断层组成,视倾向南,皆为正断层,其中,Fp3、Fp4、Fp6断层为晚更新世断裂,Fp5断层为中更新世断裂。选取三湖断裂带中经浅层地震勘探确定的上断点埋深最浅的 Fp3 断层上断点,开展钻孔联合地质剖面探测工作,并将Fp3断层修正为Fp3a断层。结果表明:(1)Fp3a断层的上断点埋深为29.0 m,结合光释光年龄数据,断错的最新地层形成于晚更新世晚期,证明该断裂为1条活动断裂;(2)Fp3a断层在晚更新世晚期发生了4次古地震事件,按照由老至新排序,事件Ⅰ、Ⅱ、Ⅲ、Ⅳ的垂直断距分别为1.88、2.12、0.70、5.70 m,说明Fp3a断层在晚更新世晚期活动频度较高,活动强度大。
乌拉山山前盆地是河套断陷带的重要组成部分。探明乌拉山山前盆地内隐伏活动断裂的分布和晚第四纪活动特征,对于认识乌拉山山前盆地构造特征和震害防御具有重要意义。浅层地震勘探在乌拉山山前盆地内新发现1条隐伏活动断裂带——三湖断裂带,该断裂带由Fp3、Fp4、Fp5、Fp6断层组成,视倾向南,皆为正断层,其中,Fp3、Fp4、Fp6断层为晚更新世断裂,Fp5断层为中更新世断裂。选取三湖断裂带中经浅层地震勘探确定的上断点埋深最浅的 Fp3 断层上断点,开展钻孔联合地质剖面探测工作,并将Fp3断层修正为Fp3a断层。结果表明:(1)Fp3a断层的上断点埋深为29.0 m,结合光释光年龄数据,断错的最新地层形成于晚更新世晚期,证明该断裂为1条活动断裂;(2)Fp3a断层在晚更新世晚期发生了4次古地震事件,按照由老至新排序,事件Ⅰ、Ⅱ、Ⅲ、Ⅳ的垂直断距分别为1.88、2.12、0.70、5.70 m,说明Fp3a断层在晚更新世晚期活动频度较高,活动强度大。
当前状态:
, 最新更新时间: ,
doi: 10.11899/zzfy20240182
摘要:
甘肃积石山6.2级地震诱发了1处特殊的地质流滑灾害,使青海省民和县中川乡金田村和草滩村一带受到了严重的人员伤亡与经济损失。本文在现场调查流滑运动和堆积特征的基础上,运用离散元方法探究中川乡流滑的运移过程及运动特征,得出了以下结论:(1)中川乡流滑具有快速远程的运动特征。整体的运动速度相对较快,流滑区运动平均速度为1.16 m/s,冲击速度为2.85 m/s,局部最大速度可达25.6 m/s,具有极强的瞬时冲击力和破坏性。(2)中川乡流滑的滑动距离远,最大位移可达2.8 km,致灾范围表现为长条状。运动的流态化是造成在平缓场地发生大面积致灾范围的原因。(3)特殊地形造成流滑具有多处堆积区,是东侧堆积区堆积体较少的根源。土坝的破坏和流通区的变窄造成了流滑速度增大和滑动距离增长。中川乡流滑运动特征的分析对此类灾害的防范具有重要的理论和现实意义。
甘肃积石山6.2级地震诱发了1处特殊的地质流滑灾害,使青海省民和县中川乡金田村和草滩村一带受到了严重的人员伤亡与经济损失。本文在现场调查流滑运动和堆积特征的基础上,运用离散元方法探究中川乡流滑的运移过程及运动特征,得出了以下结论:(1)中川乡流滑具有快速远程的运动特征。整体的运动速度相对较快,流滑区运动平均速度为1.16 m/s,冲击速度为2.85 m/s,局部最大速度可达25.6 m/s,具有极强的瞬时冲击力和破坏性。(2)中川乡流滑的滑动距离远,最大位移可达2.8 km,致灾范围表现为长条状。运动的流态化是造成在平缓场地发生大面积致灾范围的原因。(3)特殊地形造成流滑具有多处堆积区,是东侧堆积区堆积体较少的根源。土坝的破坏和流通区的变窄造成了流滑速度增大和滑动距离增长。中川乡流滑运动特征的分析对此类灾害的防范具有重要的理论和现实意义。
当前状态:
, 最新更新时间: ,
doi: 10.11899/zzfy20240166
摘要:
位于断层蠕滑错动地段的隧道存在结构破坏风险,钢-聚丙烯混杂纤维能显著改善混凝土韧性,有效减缓断层错动带来的衬砌裂缝延展,但相关研究较少。在修正既有钢-聚丙烯混杂纤维混凝土本构模型基础上,基于Najar公式计算损伤变量,使用ABAQUS建立跨蠕滑逆断层隧道三维模型,对不同断层错动量下,不同纤维类型、掺量的混凝土衬砌力学性能和损伤开展研究。结果表明,断层倾角为60°时,不同错动量和纤维参数下隧道衬砌的受影响范围均为以错动带为中心的100 m,拱顶最大主应力和纵向应变极值、拱脚剪应变和拉压损伤极值最大;掺入适量纤维能明显增强衬砌力学性能并减少损伤,且混掺效果较单掺更优;混掺纤维时,在一定范围内提高某种纤维掺量能更有效地改善衬砌力学性能和损伤,并削弱拱顶最大主应力、加强拱脚受压损伤对另一种纤维掺量的敏感性;断层竖向错动不超过30 cm时,掺入适量混杂纤维可较好地满足衬砌受力变形及损伤需求,超过30 cm后可结合其他防错断措施。
位于断层蠕滑错动地段的隧道存在结构破坏风险,钢-聚丙烯混杂纤维能显著改善混凝土韧性,有效减缓断层错动带来的衬砌裂缝延展,但相关研究较少。在修正既有钢-聚丙烯混杂纤维混凝土本构模型基础上,基于Najar公式计算损伤变量,使用ABAQUS建立跨蠕滑逆断层隧道三维模型,对不同断层错动量下,不同纤维类型、掺量的混凝土衬砌力学性能和损伤开展研究。结果表明,断层倾角为60°时,不同错动量和纤维参数下隧道衬砌的受影响范围均为以错动带为中心的100 m,拱顶最大主应力和纵向应变极值、拱脚剪应变和拉压损伤极值最大;掺入适量纤维能明显增强衬砌力学性能并减少损伤,且混掺效果较单掺更优;混掺纤维时,在一定范围内提高某种纤维掺量能更有效地改善衬砌力学性能和损伤,并削弱拱顶最大主应力、加强拱脚受压损伤对另一种纤维掺量的敏感性;断层竖向错动不超过30 cm时,掺入适量混杂纤维可较好地满足衬砌受力变形及损伤需求,超过30 cm后可结合其他防错断措施。
当前状态:
, 最新更新时间: ,
doi: 10.11899/zzfy20250146
摘要:
为了探索和建立适用于我国的现地峰值加速度(PGA)预测模型,以及提高现地PGA预测的可靠性,本研究提出了一种基于时空图神经网络的现地PGA预测模型(TSGNN-PGA),并采用中国强震数据对TSGNN-PGA模型进行训练和测试。测试结果表明:P波触发后3秒,和Pd-PGA方法相比,TSGNN-PGA模型对于PGA预测有更小的平均绝对误差(MAE)和标准差(STD),以及更大的决定系数,且分别为0.205、0.261和0.688;同时,和Pd-PGA方法相比,在不同的震中距、震级和信噪比范围下,TSGNN-PGA模型对于PGA预测有更小的MAE和STD,这意味着TSGNN-PGA模型对于震中距、震级和信噪比的敏感性更弱,且受影响更小;此外,在积石山6.2级地震中,和Pd-PGA方法相比,TSGNN-PGA模型对于PGA预测表现出更强的鲁棒性。可以推断,TSGNN-PGA模型在一定程度上可以提高我国现地PGA预测的可靠性,且对于地震预警有着重要意义。
为了探索和建立适用于我国的现地峰值加速度(PGA)预测模型,以及提高现地PGA预测的可靠性,本研究提出了一种基于时空图神经网络的现地PGA预测模型(TSGNN-PGA),并采用中国强震数据对TSGNN-PGA模型进行训练和测试。测试结果表明:P波触发后3秒,和Pd-PGA方法相比,TSGNN-PGA模型对于PGA预测有更小的平均绝对误差(MAE)和标准差(STD),以及更大的决定系数,且分别为0.205、0.261和0.688;同时,和Pd-PGA方法相比,在不同的震中距、震级和信噪比范围下,TSGNN-PGA模型对于PGA预测有更小的MAE和STD,这意味着TSGNN-PGA模型对于震中距、震级和信噪比的敏感性更弱,且受影响更小;此外,在积石山6.2级地震中,和Pd-PGA方法相比,TSGNN-PGA模型对于PGA预测表现出更强的鲁棒性。可以推断,TSGNN-PGA模型在一定程度上可以提高我国现地PGA预测的可靠性,且对于地震预警有着重要意义。
当前状态:
, 最新更新时间: ,
doi: 10.11899/zzfy20250127
摘要:
本文将灰色系统理论与梯度下降算法结合,提出了一种基于GM(1, 1)模型的动态自适应模型优化方法,用于桥梁震损预测。结合桥梁震损研究中地震动随机性强、结构破坏有界等特点,对GM(1, 1)模型进行了多项优化,并引入梯度下降算法实现参数动态优化。通过建立四跨预应力混凝土组合箱梁桥的有限元模型,并采用实测地震动记录进行非线性动力时程分析,验证了模型优化方法的可行性与精确度。结果表明,优化后的模型仅需5~6个初始数据即可有效预测桥梁地震易损性,最大误差控制在7%以内,轻微破坏预测精度最高。本研究为地震频发地区提供了轻量化预测方案,基于少量数据即可开展多烈度易损性评估。
本文将灰色系统理论与梯度下降算法结合,提出了一种基于GM(1, 1)模型的动态自适应模型优化方法,用于桥梁震损预测。结合桥梁震损研究中地震动随机性强、结构破坏有界等特点,对GM(1, 1)模型进行了多项优化,并引入梯度下降算法实现参数动态优化。通过建立四跨预应力混凝土组合箱梁桥的有限元模型,并采用实测地震动记录进行非线性动力时程分析,验证了模型优化方法的可行性与精确度。结果表明,优化后的模型仅需5~6个初始数据即可有效预测桥梁地震易损性,最大误差控制在7%以内,轻微破坏预测精度最高。本研究为地震频发地区提供了轻量化预测方案,基于少量数据即可开展多烈度易损性评估。
当前状态:
, 最新更新时间: ,
doi: 10.11899/zzfy202400508
摘要:
本文以某跨海三塔斜拉桥为研究对象,开展了地震-冲刷联合作用下三塔斜拉桥危险性分析,给出了合理冲刷深度计算方法。首先,提出了地震-冲刷联合作用下桥梁危险性分析流程。其次,建立了符合P-Ⅲ分布的地震危险性模型,利用蒙特卡罗模拟的数值结果拟合了冲刷危险性模型。同时,以该背景桥梁为原型建立了三塔斜拉桥的非线性动力分析模型,进行了一系列非线性时程分析,在地震和冲刷危险分析模型的基础上,建立了三塔斜拉桥在确定和可变冲刷深度下的破坏概率模型。最后,通过地震-冲刷联合作用下的破坏概率模型计算出合理的冲刷深度。本文提出的危险性分析框架和分析结果可为地震-冲刷灾害下类似桥梁的设计提供理论依据。
本文以某跨海三塔斜拉桥为研究对象,开展了地震-冲刷联合作用下三塔斜拉桥危险性分析,给出了合理冲刷深度计算方法。首先,提出了地震-冲刷联合作用下桥梁危险性分析流程。其次,建立了符合P-Ⅲ分布的地震危险性模型,利用蒙特卡罗模拟的数值结果拟合了冲刷危险性模型。同时,以该背景桥梁为原型建立了三塔斜拉桥的非线性动力分析模型,进行了一系列非线性时程分析,在地震和冲刷危险分析模型的基础上,建立了三塔斜拉桥在确定和可变冲刷深度下的破坏概率模型。最后,通过地震-冲刷联合作用下的破坏概率模型计算出合理的冲刷深度。本文提出的危险性分析框架和分析结果可为地震-冲刷灾害下类似桥梁的设计提供理论依据。
当前状态:
, 最新更新时间: ,
doi: 10.11899/zzfy20240171
摘要:
西部山区由于其地形地势特点,极易发生地震滑坡等灾害,滑坡体高速入水产生涌浪,对建筑结构造成巨大危害。本文基于计算流体动力学(CFD)的FLUENT软件,建立了滑坡涌浪三维数值模型,通过已有的物理模型试验验证了该数值方法的有效性,进一步探讨了水流动力作用下滑坡涌浪的传播规律及动水压力的变化规律。数值模拟结果表明,考虑水流作用后,涌浪波高的变化随着流速的增加而增大,流速0.5m/s时波高约为无水流的3倍;不同测点处首浪动水压强最大值、以及动水压差会不同程度受水流作用的影响,动水压差最大能达到600Pa;当滑坡体的宽度增加1倍时,波压波动的相对变化增加了15%;滑坡体滑速增大1m/s时,波压波动的相对变化增加了约17%。
西部山区由于其地形地势特点,极易发生地震滑坡等灾害,滑坡体高速入水产生涌浪,对建筑结构造成巨大危害。本文基于计算流体动力学(CFD)的FLUENT软件,建立了滑坡涌浪三维数值模型,通过已有的物理模型试验验证了该数值方法的有效性,进一步探讨了水流动力作用下滑坡涌浪的传播规律及动水压力的变化规律。数值模拟结果表明,考虑水流作用后,涌浪波高的变化随着流速的增加而增大,流速0.5m/s时波高约为无水流的3倍;不同测点处首浪动水压强最大值、以及动水压差会不同程度受水流作用的影响,动水压差最大能达到600Pa;当滑坡体的宽度增加1倍时,波压波动的相对变化增加了15%;滑坡体滑速增大1m/s时,波压波动的相对变化增加了约17%。
当前状态:
, 最新更新时间: ,
doi: 10.11899/zzfy20250125
摘要:
长周期地震动因具有丰富的低频成分而易使超高层建筑、大跨桥梁、大型生命线工程等长周期结构产生震害,根据形成机制与特征不同,可分为近场长周期地震动和远场长周期地震动两大类。目前对于长周期地震动的界定方法尚未有统一标准,现有方法多根据单一参数判定,无法表征长周期地震动的复杂特性,且缺少对不同类型长周期地震动的界定。鉴于此,本文从人工多角度提取特征和自动拾取时空联合特征两个角度,分别基于机器学习和深度学习搭建PCA-SVM模型和CNN-LSTM-Attention模型,构建近、远场长周期地震动识别体系,最终分别在测试集上达到了96.01%和97.83%的准确率。结果表明,本文提出的两种分类模型对近、远场长周期地震动均有较好的预测效果,且相较于传统方法具有优越性,可为长周期地震动的识别与选取提供参考。
长周期地震动因具有丰富的低频成分而易使超高层建筑、大跨桥梁、大型生命线工程等长周期结构产生震害,根据形成机制与特征不同,可分为近场长周期地震动和远场长周期地震动两大类。目前对于长周期地震动的界定方法尚未有统一标准,现有方法多根据单一参数判定,无法表征长周期地震动的复杂特性,且缺少对不同类型长周期地震动的界定。鉴于此,本文从人工多角度提取特征和自动拾取时空联合特征两个角度,分别基于机器学习和深度学习搭建PCA-SVM模型和CNN-LSTM-Attention模型,构建近、远场长周期地震动识别体系,最终分别在测试集上达到了96.01%和97.83%的准确率。结果表明,本文提出的两种分类模型对近、远场长周期地震动均有较好的预测效果,且相较于传统方法具有优越性,可为长周期地震动的识别与选取提供参考。
当前状态:
, 最新更新时间: ,
doi: 10.11899/zzfy20250108
摘要:
针对局部区域强震台站稀疏分布导致的数据驱动类场地放大效应预测模型建立困难,本研究提出了一种基于少数台站多次地震事件观测数据构建局部场地效应预测模型的方法。通过场地效应评价的标准谱比法(Surface/Basement Spectral Ratio,SBSR)和广义反演法(Generalized Inversion Technique,GIT)确定场地放大指标,结合卷积神经网络(Convolutional Neural Networks,CNN)和长短时记忆网络(Long Short-term Memory Networks,LSTM),构建了四类智能预测模型(CNN-SBSR、CNN-GIT、LSTM-SBSR和LSTM-GIT)。其中SBSR类模型选取了震源参数(震级、震中距、震源深度)、场地参数(剪切波速、基岩记录加速度峰值)及空间坐标(经纬度)等为输入参数,而GIT类模型则依赖场地特性和空间信息等相关参数。与传统场地预测方法的区别在于所建立的预测模型可直接学习单次地震事件的观测数据,而非基于台站平均谱比曲线进行回归,从而有效解决了传统方法难以外推至无台站区域的局限性。基于所提出的方法利用新西兰下哈特盆地5个台站数据所构建预测模型的交叉验证结果表明:LSTM类模型凭借其优异的时序特征提取能力展现出更高的预测精度,而CNN模型在参数较少时表现出更好的稳健性。GIT方法因强化场地参数作用,整体性能优于SBSR方法。其中,LSTM-GIT组合模型表现最优。本研究提出的技术方案,为稀疏台站区域的场地放大预测提供了兼具精度与可靠性的解决方法。
针对局部区域强震台站稀疏分布导致的数据驱动类场地放大效应预测模型建立困难,本研究提出了一种基于少数台站多次地震事件观测数据构建局部场地效应预测模型的方法。通过场地效应评价的标准谱比法(Surface/Basement Spectral Ratio,SBSR)和广义反演法(Generalized Inversion Technique,GIT)确定场地放大指标,结合卷积神经网络(Convolutional Neural Networks,CNN)和长短时记忆网络(Long Short-term Memory Networks,LSTM),构建了四类智能预测模型(CNN-SBSR、CNN-GIT、LSTM-SBSR和LSTM-GIT)。其中SBSR类模型选取了震源参数(震级、震中距、震源深度)、场地参数(剪切波速、基岩记录加速度峰值)及空间坐标(经纬度)等为输入参数,而GIT类模型则依赖场地特性和空间信息等相关参数。与传统场地预测方法的区别在于所建立的预测模型可直接学习单次地震事件的观测数据,而非基于台站平均谱比曲线进行回归,从而有效解决了传统方法难以外推至无台站区域的局限性。基于所提出的方法利用新西兰下哈特盆地5个台站数据所构建预测模型的交叉验证结果表明:LSTM类模型凭借其优异的时序特征提取能力展现出更高的预测精度,而CNN模型在参数较少时表现出更好的稳健性。GIT方法因强化场地参数作用,整体性能优于SBSR方法。其中,LSTM-GIT组合模型表现最优。本研究提出的技术方案,为稀疏台站区域的场地放大预测提供了兼具精度与可靠性的解决方法。
当前状态:
, 最新更新时间: ,
doi: 10.11899/zzfy20250106
摘要:
工程结构加固是指为满足新的功能需求、安全标准或抗震设防要求对既有结构进行的加固补强。加固方案的选择往往依托技术人员的专业技术水平和工程经验,具有一定的主观性。本文采用机器学习中的随机森林算法作为数据分析工具,以结构信息和结构问题两方面共14个影响因素为输入特征,以结构整体加固和局部加固方案为输出特征,构建了结构加固策略智能化分析模型,有效解决结构加固方案复杂且组合情况众多而难以构建有效机器学习模型的问题。本文以122个实际工程案例为样本构建数据集,通过5个独立随机森林模型(整体结构、墙、柱、梁、板)的构建与整合实现了结构整体加固和局部加固方案的预测,分析了全部特征、重要特征和简单特征三种不同输入特征组合的随机森林模型预测结果以探究不同输入特征对模型准确率的影响。结果表明:基于全部特征和基于重要特征的机器学习模型的准确率相近,5个模型中准确率均可达到69%以上,其中部分模型可以达到80%左右;而基于简单特征的随机森林模型的准确率较低。由此可见,选取的重要特征与随机森林模型的预测准确率相关性高,而简单特征难以构建可靠的预测模型。本文研究成果可为结构加固领域的智能化决策和分析提供参考。
工程结构加固是指为满足新的功能需求、安全标准或抗震设防要求对既有结构进行的加固补强。加固方案的选择往往依托技术人员的专业技术水平和工程经验,具有一定的主观性。本文采用机器学习中的随机森林算法作为数据分析工具,以结构信息和结构问题两方面共14个影响因素为输入特征,以结构整体加固和局部加固方案为输出特征,构建了结构加固策略智能化分析模型,有效解决结构加固方案复杂且组合情况众多而难以构建有效机器学习模型的问题。本文以122个实际工程案例为样本构建数据集,通过5个独立随机森林模型(整体结构、墙、柱、梁、板)的构建与整合实现了结构整体加固和局部加固方案的预测,分析了全部特征、重要特征和简单特征三种不同输入特征组合的随机森林模型预测结果以探究不同输入特征对模型准确率的影响。结果表明:基于全部特征和基于重要特征的机器学习模型的准确率相近,5个模型中准确率均可达到69%以上,其中部分模型可以达到80%左右;而基于简单特征的随机森林模型的准确率较低。由此可见,选取的重要特征与随机森林模型的预测准确率相关性高,而简单特征难以构建可靠的预测模型。本文研究成果可为结构加固领域的智能化决策和分析提供参考。
当前状态:
, 最新更新时间: ,
doi: 10.11899/zzfy20240180
摘要:
场地条件、地震动输入对地震动表现有显著影响,因此,深入了解场地的抗震性能并分析其对地震动的响应,对于理解地面运动至关重要。本文综合考察了场地条件和地震动输入对场地地震反应的影响机理,并全面概述了目前广泛使用的地震反应分析方法。场地地震反应分析是场地地震安全性评价和工程结构抗震设计的重要环节,主要分为确定性和不确定性分析方法,两者的主要区别在于是否考虑土体参数及地震动参数的不确定性。目前国内外研究学者针对确定性振动分析方法的研究较多,而对于随机振动分析方法的研究成果则相对较少。文章对需深入探索的研究工作进行了展望,旨在为场地地震反应分析未来的研究方向提供有价值的参考和指导。
场地条件、地震动输入对地震动表现有显著影响,因此,深入了解场地的抗震性能并分析其对地震动的响应,对于理解地面运动至关重要。本文综合考察了场地条件和地震动输入对场地地震反应的影响机理,并全面概述了目前广泛使用的地震反应分析方法。场地地震反应分析是场地地震安全性评价和工程结构抗震设计的重要环节,主要分为确定性和不确定性分析方法,两者的主要区别在于是否考虑土体参数及地震动参数的不确定性。目前国内外研究学者针对确定性振动分析方法的研究较多,而对于随机振动分析方法的研究成果则相对较少。文章对需深入探索的研究工作进行了展望,旨在为场地地震反应分析未来的研究方向提供有价值的参考和指导。
当前状态:
, 最新更新时间: ,
doi: 10.11899/zzfy20250039
摘要:
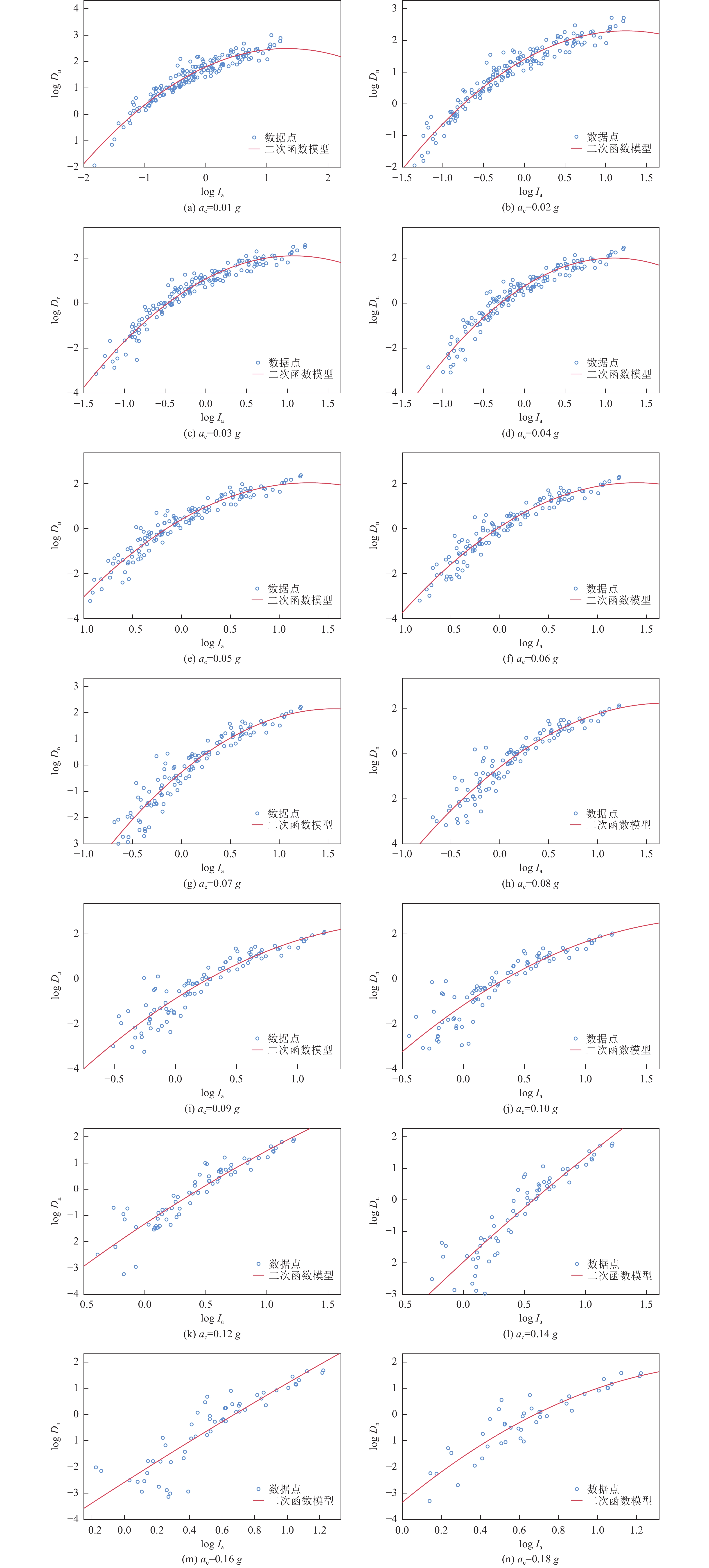
基于Newmark累积位移模型的区域地震滑坡危险性评估是目前国内外主流的定量评估方法之一,而Newmark位移模型是应用该方法的关键。本文利用2008年汶川MS8.0地震强震动数据,优化改进并建立了基于临界加速度、Arias 强度参数的线性和二次函数2种形式的Newmark位移模型,同时与已有位移预测模型在拟合优度上进行对比。利用2013年芦山MS7.0地震强震动数据进行对比分析,验证了改进模型的精度和有效性。基于改进模型及前人模型,开展了2017年九寨沟MS7.0地震诱发同震滑坡危险性评估分析,预测位移与实际地震滑坡分布对比显示,改进模型的ROC曲线成功率(SAUC=0.913)略高于前人模型,表明其对地震滑坡高危险区的评估效果更佳,可为青藏高原东缘等类似地区的同震滑坡识别提供参考。
基于Newmark累积位移模型的区域地震滑坡危险性评估是目前国内外主流的定量评估方法之一,而Newmark位移模型是应用该方法的关键。本文利用2008年汶川MS8.0地震强震动数据,优化改进并建立了基于临界加速度、Arias 强度参数的线性和二次函数2种形式的Newmark位移模型,同时与已有位移预测模型在拟合优度上进行对比。利用2013年芦山MS7.0地震强震动数据进行对比分析,验证了改进模型的精度和有效性。基于改进模型及前人模型,开展了2017年九寨沟MS7.0地震诱发同震滑坡危险性评估分析,预测位移与实际地震滑坡分布对比显示,改进模型的ROC曲线成功率(SAUC=0.913)略高于前人模型,表明其对地震滑坡高危险区的评估效果更佳,可为青藏高原东缘等类似地区的同震滑坡识别提供参考。
当前状态:
, 最新更新时间: ,
doi: 10.11899/zzfy20240176
摘要:
为了分析兵马俑的地震响应情况并探讨不同因素对兵马俑抗震性能的影响,对武士俑进行建模与有限元计算。通过时程分析确定兵马俑的运动状态和启动滑移、摇晃的地面峰值加速度临界值,并以刚体运动理论进行对比,得到了摩擦系数、重心高度、地震大小、地震方向对兵马俑的抗震响应影响。结果表明,兵马俑在地震中会发生静止、滑移、滑移摇晃、摇晃或倾覆5种运动状态。随着摩擦系数和地震加速度增大、宽高比降低,兵马俑更容易在地震中发生摇晃或者倾覆,反之则更倾向于滑移或静止。当兵马俑发生倾覆时,颈部与腿部将发生断裂破坏,其余运动状态材料均未出现失效。俑的前后向最易失稳,该方向宽高比也最小。兵马俑地震响应的数值模拟结果与刚体理论分析基本一致,可以将兵马俑看做刚体并采用理论公式进行快速评估。
为了分析兵马俑的地震响应情况并探讨不同因素对兵马俑抗震性能的影响,对武士俑进行建模与有限元计算。通过时程分析确定兵马俑的运动状态和启动滑移、摇晃的地面峰值加速度临界值,并以刚体运动理论进行对比,得到了摩擦系数、重心高度、地震大小、地震方向对兵马俑的抗震响应影响。结果表明,兵马俑在地震中会发生静止、滑移、滑移摇晃、摇晃或倾覆5种运动状态。随着摩擦系数和地震加速度增大、宽高比降低,兵马俑更容易在地震中发生摇晃或者倾覆,反之则更倾向于滑移或静止。当兵马俑发生倾覆时,颈部与腿部将发生断裂破坏,其余运动状态材料均未出现失效。俑的前后向最易失稳,该方向宽高比也最小。兵马俑地震响应的数值模拟结果与刚体理论分析基本一致,可以将兵马俑看做刚体并采用理论公式进行快速评估。
当前状态:
, 最新更新时间: ,
doi: 10.11899/zzfy20240240
摘要:
本文利用PALM(Phase picking, Association, Location, and Matchedfilter)全流程地震编目框架构建了2020年7月12日唐山5.1级地震前4天至后13天的高分辨率地震目录,共检测出135次地震事件,揭示了唐山地震序列的空间分布特征。从剖面看,唐山5.1级地震发震断层近直立,主震发生在深部15 km处,余震分布呈现从深到浅的趋势,整体分布呈现NW向,在东南部深度15 km处出现了微震丛集,定位后的地震分布与震源机制解NW向界面一致性较好。结合该区的VP和VP/VS波速比分析,显示地震震中成北西向展布,具有较好的收敛性,在深度8~12 km和20 km处存在着高波速比特征。
本文利用PALM(Phase picking, Association, Location, and Matchedfilter)全流程地震编目框架构建了2020年7月12日唐山5.1级地震前4天至后13天的高分辨率地震目录,共检测出135次地震事件,揭示了唐山地震序列的空间分布特征。从剖面看,唐山5.1级地震发震断层近直立,主震发生在深部15 km处,余震分布呈现从深到浅的趋势,整体分布呈现NW向,在东南部深度15 km处出现了微震丛集,定位后的地震分布与震源机制解NW向界面一致性较好。结合该区的VP和VP/VS波速比分析,显示地震震中成北西向展布,具有较好的收敛性,在深度8~12 km和20 km处存在着高波速比特征。
2025, 20(2): 221-232.
doi: 10.11899/zzfy20250084
摘要:
2025年1月7日西藏定日县发生6.8级地震,造成了重大的人员伤亡,此次地震的发震断裂为申扎-定结裂谷系南部的登么错断裂。本文通过遥感影像解译、无人机航拍、现场调查结合前人研究,对此次地震同震地表破裂与湖岸地表变形的特征及成因展开了讨论。研究表明,同震地表破裂断续分布于羊姆丁错姆至朋曲河一带,总体沿先存断层陡坎展布,垂直位错在尼辖错东北最大,达2.5~3.0 m,古荣村及羊姆丁错姆一带为50~80 cm,古荣村以南小于25 cm。湖岸地表变形展布于登么错东岸,宽达100~300 m,多表现为拉张裂隙和挤压土堆,为地震动与重力滑塌共同作用所致。此次地震还反映了断裂带复杂的非均匀应力分配与破裂传播过程,余震分布进一步表明断裂深部存在相互作用与影响,这种深部构造的复杂性显著增加了该地区地震活动的不确定性。
2025年1月7日西藏定日县发生6.8级地震,造成了重大的人员伤亡,此次地震的发震断裂为申扎-定结裂谷系南部的登么错断裂。本文通过遥感影像解译、无人机航拍、现场调查结合前人研究,对此次地震同震地表破裂与湖岸地表变形的特征及成因展开了讨论。研究表明,同震地表破裂断续分布于羊姆丁错姆至朋曲河一带,总体沿先存断层陡坎展布,垂直位错在尼辖错东北最大,达2.5~3.0 m,古荣村及羊姆丁错姆一带为50~80 cm,古荣村以南小于25 cm。湖岸地表变形展布于登么错东岸,宽达100~300 m,多表现为拉张裂隙和挤压土堆,为地震动与重力滑塌共同作用所致。此次地震还反映了断裂带复杂的非均匀应力分配与破裂传播过程,余震分布进一步表明断裂深部存在相互作用与影响,这种深部构造的复杂性显著增加了该地区地震活动的不确定性。
2025, 20(2): 233-242.
doi: 10.11899/zzfy20250031
摘要:
北京时间2025年1月7日9点5分,在我国西藏定日县发生了6.8级地震。利用震中周边 GNSS连续观测数据反演获取同震位移场,结果表明,距离震中最近的测站为XZZF站,其同震位移量最大,南北向达到−17.14 mm,东西向达到−41.62 mm,基于震中周边3个站点的同震位移数据特征分析,此次地震呈现出典型的正断型地震运动学特征;对GNSS站间基线时间序列及区域应变时间序列的系统性研究结果显示,登么错断裂(又称丁木错断裂)带处于显著的拉张运动状态;震前 GNSS 动态应变场的分析结果表明,该区域的面应变由挤压逐渐变为拉张趋势,量值较小,且始终处在拉张应变高值区边缘;块体模型计算得到申扎-定结裂谷的左旋滑动速率为(3.2±0.5)mm/a,伸展速率为(1.4±0.6)mm/a,GNSS剖面计算得到发震断层登么错的拉张滑动速率为(1.58±0.6) mm/a,左旋滑动速率为(1.49±0.7) mm/a,裂谷南段的运动速率相对于整个裂谷运动速率较小,且处于应变高值区边缘,未来仍有发生强震的可能。
北京时间2025年1月7日9点5分,在我国西藏定日县发生了6.8级地震。利用震中周边 GNSS连续观测数据反演获取同震位移场,结果表明,距离震中最近的测站为XZZF站,其同震位移量最大,南北向达到−17.14 mm,东西向达到−41.62 mm,基于震中周边3个站点的同震位移数据特征分析,此次地震呈现出典型的正断型地震运动学特征;对GNSS站间基线时间序列及区域应变时间序列的系统性研究结果显示,登么错断裂(又称丁木错断裂)带处于显著的拉张运动状态;震前 GNSS 动态应变场的分析结果表明,该区域的面应变由挤压逐渐变为拉张趋势,量值较小,且始终处在拉张应变高值区边缘;块体模型计算得到申扎-定结裂谷的左旋滑动速率为(3.2±0.5)mm/a,伸展速率为(1.4±0.6)mm/a,GNSS剖面计算得到发震断层登么错的拉张滑动速率为(1.58±0.6) mm/a,左旋滑动速率为(1.49±0.7) mm/a,裂谷南段的运动速率相对于整个裂谷运动速率较小,且处于应变高值区边缘,未来仍有发生强震的可能。
2025, 20(2): 243-253.
doi: 10.11899/zzfy20250037
摘要:
2025年1月7日,西藏日喀则市定日县发生6.8级地震及多次余震,经震后初步排查,已经造成约3612 户房屋倒塌,约6.15万人受灾。为了掌握此次地震对建筑结构的破坏情况,对拉孜县范围内地震烈度为Ⅶ度的地区进行震害调查,重点考察了该范围内框架结构、砌体结构以及土(石)木结构的震害特征,并对其破坏原因进行分析。调查与分析结果表明:框架结构在此次地震中受灾较轻,梁、板、柱等主要受力构件基本完好,破坏主要表现在填充墙内及边缘连接处出现裂缝;砌体结构受砌筑砂浆强度影响,在其主要竖向传力构件承重墙内出现较多剪切斜裂缝,此外构造柱与砌体的拉结效应不足,也造成连接处产生裂缝,震损情况略严重于框架结构;传统藏式土(石)木结构发生了较严重破坏,其主要竖向传力构件土坯墙“散”且“脆”的特点造成该结构在地震中很容易开裂并快速解体,致使结构坍塌。基于这些震害现象及破坏原因,提出了相应的改进措施,将为抗震救灾和灾后恢复重建工作提供科学依据和技术支撑。
2025年1月7日,西藏日喀则市定日县发生6.8级地震及多次余震,经震后初步排查,已经造成约
2025, 20(2): 254-267.
doi: 10.11899/zzfy20240161
摘要:
根据以往地震发生后现场实际破坏数据可知,地震次生地质灾害已造成严重的灾区人员伤亡和经济损失,为此,需对地震次生地质灾害情景进行演化分析。为了解地震次生地质灾害的演化过程,首先基于突发事件知识元模型,对地震次生地质灾害情景组成要素进行分析。其次基于贝叶斯模型,明确构成地震次生地质灾害演化贝叶斯网络的节点变量及其取值范围,根据这些节点变量之间的因果关系和专家打分,建立贝叶斯网络图和节点变量条件概率模型。并利用证据理论将概率融合修正,计算次生地质灾害下关键节点状态概率,实现事故关键情景的推演。最后结合知识元模型和构建的地震次生地质灾害贝叶斯网络模型,对临夏积石山6.2级地震发生后导致的次生地质灾害情景进行分析。
根据以往地震发生后现场实际破坏数据可知,地震次生地质灾害已造成严重的灾区人员伤亡和经济损失,为此,需对地震次生地质灾害情景进行演化分析。为了解地震次生地质灾害的演化过程,首先基于突发事件知识元模型,对地震次生地质灾害情景组成要素进行分析。其次基于贝叶斯模型,明确构成地震次生地质灾害演化贝叶斯网络的节点变量及其取值范围,根据这些节点变量之间的因果关系和专家打分,建立贝叶斯网络图和节点变量条件概率模型。并利用证据理论将概率融合修正,计算次生地质灾害下关键节点状态概率,实现事故关键情景的推演。最后结合知识元模型和构建的地震次生地质灾害贝叶斯网络模型,对临夏积石山6.2级地震发生后导致的次生地质灾害情景进行分析。
2025, 20(2): 268-280.
doi: 10.11899/zzfy20230247
摘要:
沿轴线方向无限长且截面形状不变的局部地形对地震波的散射,即二维地形的三维散射问题(也称2.5维问题),一直是地震工程领域关注的热点。近年来,笔者利用基于移动斜线荷载动力格林函数的间接边界元法(IBEM)对此问题展开研究,求解了不同地形的2.5维散射结果。为便于相关研究的对比验证,笔者将二维、2.5维和三维IBEM结果进行了整理与补充。本文为各向同性弹性介质层状半空间中凹陷、凸起和沉积地形对斜入射平面SH波、P波和SV波响应的2.5维频域结果,研究表明,入射波频率、角度和地形几何形状均会对地表位移产生影响。
沿轴线方向无限长且截面形状不变的局部地形对地震波的散射,即二维地形的三维散射问题(也称2.5维问题),一直是地震工程领域关注的热点。近年来,笔者利用基于移动斜线荷载动力格林函数的间接边界元法(IBEM)对此问题展开研究,求解了不同地形的2.5维散射结果。为便于相关研究的对比验证,笔者将二维、2.5维和三维IBEM结果进行了整理与补充。本文为各向同性弹性介质层状半空间中凹陷、凸起和沉积地形对斜入射平面SH波、P波和SV波响应的2.5维频域结果,研究表明,入射波频率、角度和地形几何形状均会对地表位移产生影响。
2025, 20(2): 281-288.
doi: 10.11899/zzfy20220151
摘要:
根据不同需求输入不同的强地震动进行时程反应分析是工程地震研究领域的基础,如何筛选出合适的地震动是其中一个重要的研究方向。目前越来越多的研究人员使用HVSR(Horizontal to Vertical Spectral Ratio)参数进行场地特性表征分析,因此本文基于HVSR进行反应谱匹配研究,并在已搭建的强震动数据库平台上实现基于HVSR的反应谱匹配,为工程抗震研究及工程设计挑选符合预设特征的地震动提供参考方法。
根据不同需求输入不同的强地震动进行时程反应分析是工程地震研究领域的基础,如何筛选出合适的地震动是其中一个重要的研究方向。目前越来越多的研究人员使用HVSR(Horizontal to Vertical Spectral Ratio)参数进行场地特性表征分析,因此本文基于HVSR进行反应谱匹配研究,并在已搭建的强震动数据库平台上实现基于HVSR的反应谱匹配,为工程抗震研究及工程设计挑选符合预设特征的地震动提供参考方法。
2025, 20(2): 289-301.
doi: 10.11899/zzfy20230502
摘要:
2022年9月5日四川省甘孜州泸定县境内发生MW 6.6地震,地震造成93人死亡、25人失联,423人受伤,给人民群众生命财产安全造成重大损失。本次地震震中位于青藏高原东部边缘,高山峡谷地貌形态突出,由此引发的地震动地形效应不容忽视。本文基于谱元方法模拟了泸定地震近断层地震动,并分析了地形场地效应的影响。在有效模拟频带范围内,得到如下结论:(1)相较于平面自由场,山谷地震动持时会增加约2倍左右,且在破裂方向上会更加明显;(2)山谷台站的三分量合成加速度峰值(PGA)放大系数普遍大于三分量合成速度峰值(PGV)放大系数,最大不超过2;(3)山谷地形使得地震动的累计绝对速度(CAV)增大2~4倍。地形能够引起地震动持时的放大,在重大工程紧急处置参数确定中应当考虑地形场地效应的影响。
2022年9月5日四川省甘孜州泸定县境内发生MW 6.6地震,地震造成93人死亡、25人失联,423人受伤,给人民群众生命财产安全造成重大损失。本次地震震中位于青藏高原东部边缘,高山峡谷地貌形态突出,由此引发的地震动地形效应不容忽视。本文基于谱元方法模拟了泸定地震近断层地震动,并分析了地形场地效应的影响。在有效模拟频带范围内,得到如下结论:(1)相较于平面自由场,山谷地震动持时会增加约2倍左右,且在破裂方向上会更加明显;(2)山谷台站的三分量合成加速度峰值(PGA)放大系数普遍大于三分量合成速度峰值(PGV)放大系数,最大不超过2;(3)山谷地形使得地震动的累计绝对速度(CAV)增大2~4倍。地形能够引起地震动持时的放大,在重大工程紧急处置参数确定中应当考虑地形场地效应的影响。
2025, 20(2): 302-315.
doi: 10.11899/zzfy20240197
摘要:
长江下游河谷地区拥有丰富的第四纪沉积记录,反映了复杂的古环境变化。利用钻孔地层开展沉积特征研究,对于揭示研究区第四纪沉积环境演化有着重要意义。本研究基于池州地区的6个钻孔资料,综合分析了研究区第四纪沉积相及环境演化过程,提供了全面的第四纪沉积环境变化参考模型。研究表明,该地区经历了新构造活动及复杂的气候变化,在河谷区形成“芜湖组+青弋江组”的地层组合;在丘陵地区形成“下蜀组+戚家矶组”的地层组合。第四纪沉积环境经历了早更新世至中更新世中期温暖湿润气候下的高地残坡积物与冲洪积物堆积阶段;中更新世晚期至晚更新世期间全球气候变化明显,总体趋于寒冷干燥,导致河流活动和沉积特征显著变化;全新世以来,受海平面波动影响,形成了具有不同粒级的沉积物堆积阶段。通过对池州地区第四纪河流相、洪积相、风成相等沉积环境的系统研究,发现该区沉积环境由早更新世温暖湿润阶段向中更新世寒冷干燥转变,中晚更新世期间气候波动频繁,以冷干与暖湿交替旋回为特征,直至全新世的温暖、湿润气候。
长江下游河谷地区拥有丰富的第四纪沉积记录,反映了复杂的古环境变化。利用钻孔地层开展沉积特征研究,对于揭示研究区第四纪沉积环境演化有着重要意义。本研究基于池州地区的6个钻孔资料,综合分析了研究区第四纪沉积相及环境演化过程,提供了全面的第四纪沉积环境变化参考模型。研究表明,该地区经历了新构造活动及复杂的气候变化,在河谷区形成“芜湖组+青弋江组”的地层组合;在丘陵地区形成“下蜀组+戚家矶组”的地层组合。第四纪沉积环境经历了早更新世至中更新世中期温暖湿润气候下的高地残坡积物与冲洪积物堆积阶段;中更新世晚期至晚更新世期间全球气候变化明显,总体趋于寒冷干燥,导致河流活动和沉积特征显著变化;全新世以来,受海平面波动影响,形成了具有不同粒级的沉积物堆积阶段。通过对池州地区第四纪河流相、洪积相、风成相等沉积环境的系统研究,发现该区沉积环境由早更新世温暖湿润阶段向中更新世寒冷干燥转变,中晚更新世期间气候波动频繁,以冷干与暖湿交替旋回为特征,直至全新世的温暖、湿润气候。
2025, 20(2): 316-326.
doi: 10.11899/zzfy20240128
摘要:
本文利用江苏地区44个固定台站和4个流动台站的观测数据,采用基于人工智能的PhaseNet震相检测法,对2012年江苏高邮-宝应M4.9地震前后30d的连续数据进行地震检测,并开展REAL震相关联、绝对定位以及HypoDD精定位研究工作,获得了此次地震序列的完整目录。研究结果表明:(1)PhaseNet检测后的地震目录数量为342个,是江苏台网人工测定地震目录数量的3.7倍,震级分布范围为ML0.5~ML5.1;(2)自动检测结果丰富了高邮-宝应ML0.5~ML1.5的地震序列,并在主震前检测到大量前震序列,从主震发生前10d开始,震中区周边出现明显的地震活动增强趋势,主震后7d余震逐渐稀疏趋于平静;(3)精定位后共得到184条高精度地震目录,约为检测前精定位地震数量的3倍,地震序列震源深度主要集中在12~15 km;(4)精定位结果显示本次地震为典型的双向破裂,主震位于剖面的中部偏下位置,地震序列整体呈NNE方向展布,发震断层较为陡峭。综合本文研究、震源机制解以及地质构造资料,推测此次地震的发震断裂为柳菱断裂。
本文利用江苏地区44个固定台站和4个流动台站的观测数据,采用基于人工智能的PhaseNet震相检测法,对2012年江苏高邮-宝应M4.9地震前后30d的连续数据进行地震检测,并开展REAL震相关联、绝对定位以及HypoDD精定位研究工作,获得了此次地震序列的完整目录。研究结果表明:(1)PhaseNet检测后的地震目录数量为342个,是江苏台网人工测定地震目录数量的3.7倍,震级分布范围为ML0.5~ML5.1;(2)自动检测结果丰富了高邮-宝应ML0.5~ML1.5的地震序列,并在主震前检测到大量前震序列,从主震发生前10d开始,震中区周边出现明显的地震活动增强趋势,主震后7d余震逐渐稀疏趋于平静;(3)精定位后共得到184条高精度地震目录,约为检测前精定位地震数量的3倍,地震序列震源深度主要集中在12~15 km;(4)精定位结果显示本次地震为典型的双向破裂,主震位于剖面的中部偏下位置,地震序列整体呈NNE方向展布,发震断层较为陡峭。综合本文研究、震源机制解以及地质构造资料,推测此次地震的发震断裂为柳菱断裂。
2025, 20(2): 327-336.
doi: 10.11899/zzfy20240503
摘要:
本文针对相对密实度为35%、55%、75%的钙质砂和石英砂,开展了系列不排水单调和循环扭剪试验,重点探讨了循环加载频率为0.1、0.5、1、2 Hz作用下的砂土抗剪能力差异和静动力剪切特性的相关性。试验表明,无论是石英砂还是钙质砂,循环加载频率对其动应力-应变的影响十分显著,高频作用下,砂土液化后呈现抗剪能力衰减特性。低频荷载作用下,应重点关注砂土变形失稳问题,高频荷载作用下,则应重点考虑砂土抗剪能力失稳问题;循环荷载和单调加载下的相变应力比不同,当有效剪应力比(q/p')超过单调加载下的相变应力比时,砂土呈现变形快速发展特征;不同循环加载频率下,砂土的循环加载破坏线和单调加载破坏线基本相近。
本文针对相对密实度为35%、55%、75%的钙质砂和石英砂,开展了系列不排水单调和循环扭剪试验,重点探讨了循环加载频率为0.1、0.5、1、2 Hz作用下的砂土抗剪能力差异和静动力剪切特性的相关性。试验表明,无论是石英砂还是钙质砂,循环加载频率对其动应力-应变的影响十分显著,高频作用下,砂土液化后呈现抗剪能力衰减特性。低频荷载作用下,应重点关注砂土变形失稳问题,高频荷载作用下,则应重点考虑砂土抗剪能力失稳问题;循环荷载和单调加载下的相变应力比不同,当有效剪应力比(q/p')超过单调加载下的相变应力比时,砂土呈现变形快速发展特征;不同循环加载频率下,砂土的循环加载破坏线和单调加载破坏线基本相近。
2025, 20(2): 337-349.
doi: 10.11899/zzfy20230128
摘要:
相较传统的调谐质量阻尼器(Tuned Mass Damper, TMD),调谐惯容阻尼器(Tuned Inerter Damper, TID)在较高的表观质量下具有更好的减震效率和耗能效果。为进一步揭示调谐惯容阻尼器的耗能减震机理,本文首先基于H∞和H2优化理论,建立了TID名义阻尼比和刚度比的最优解模型;其次提出了基于性能需求的全局优化设计方法;最后通过地震响应分析验证了优化效果。研究表明,在随机地震激励条件下,以随机响应为目标函数进行参数优化能够获得更合理的TID参数组合。基于性能需求的优化方法可有效实现TID的全局优化设计,当预设目标位移减振系数后,本文提出的4组优化参数均可精确控制结构位移响应。以速度指标确定的优化参数能最大化惯容单元的变形增效效应,其阻尼单元行程为传统黏滞阻尼器(Viscous Damper, VD)的2~3倍。在相同名义阻尼比条件下,TID的耗能能力显著优于VD。值得注意的是,随着名义阻尼比取值的增大,TID阻尼单元的变形增效效应会逐渐减弱。当TID目标位移减振比为0.5时,采用大阻尼比(0.0105 )的总耗能最少(54.68 kJ),TID的耗能也最少(41.60 kJ),耗能占比为76.09%;采用小阻尼比(0.007 7 )的总耗能为60.94 kJ,但TID的耗能为47.47 kJ,耗能占比为77.90%。小阻尼能够充分发挥惯容单元的变形增效优势,采用较低成本达到更好的耗能减震效果。
相较传统的调谐质量阻尼器(Tuned Mass Damper, TMD),调谐惯容阻尼器(Tuned Inerter Damper, TID)在较高的表观质量下具有更好的减震效率和耗能效果。为进一步揭示调谐惯容阻尼器的耗能减震机理,本文首先基于H∞和H2优化理论,建立了TID名义阻尼比和刚度比的最优解模型;其次提出了基于性能需求的全局优化设计方法;最后通过地震响应分析验证了优化效果。研究表明,在随机地震激励条件下,以随机响应为目标函数进行参数优化能够获得更合理的TID参数组合。基于性能需求的优化方法可有效实现TID的全局优化设计,当预设目标位移减振系数后,本文提出的4组优化参数均可精确控制结构位移响应。以速度指标确定的优化参数能最大化惯容单元的变形增效效应,其阻尼单元行程为传统黏滞阻尼器(Viscous Damper, VD)的2~3倍。在相同名义阻尼比条件下,TID的耗能能力显著优于VD。值得注意的是,随着名义阻尼比取值的增大,TID阻尼单元的变形增效效应会逐渐减弱。当TID目标位移减振比为0.5时,采用大阻尼比(
2025, 20(2): 350-361.
doi: 10.11899/zzfy20240079
摘要:
为研究近断层软弱地基下单塔斜拉桥的合理减震体系,以天津某单塔斜拉桥为工程背景,采用有限元软件建立动力分析模型,利用非线性动力时程分析法分析了近断层地震动地震响应及软弱地基条件下不同结构体系的地震响应。分别采用铅芯橡胶支座与超高阻尼隔震橡胶支座,通过改变支座参数,对比分析减震效果。结果表明,近断层软弱地基下,刚构体系相较于半漂浮体系,在主梁跨中位移减小7.37%,超高阻尼隔震橡胶支座的半漂浮体系相较于刚构体系在主梁跨中弯矩减小18.75%,效果最佳。支座的初始水平刚度会影响桥梁的整体刚度,使结构地震位移响应减小,因此当桥梁需要控制位移时,应选择初始水平刚度较大的支座。
为研究近断层软弱地基下单塔斜拉桥的合理减震体系,以天津某单塔斜拉桥为工程背景,采用有限元软件建立动力分析模型,利用非线性动力时程分析法分析了近断层地震动地震响应及软弱地基条件下不同结构体系的地震响应。分别采用铅芯橡胶支座与超高阻尼隔震橡胶支座,通过改变支座参数,对比分析减震效果。结果表明,近断层软弱地基下,刚构体系相较于半漂浮体系,在主梁跨中位移减小7.37%,超高阻尼隔震橡胶支座的半漂浮体系相较于刚构体系在主梁跨中弯矩减小18.75%,效果最佳。支座的初始水平刚度会影响桥梁的整体刚度,使结构地震位移响应减小,因此当桥梁需要控制位移时,应选择初始水平刚度较大的支座。
2025, 20(2): 362-371.
doi: 10.11899/zzfy20240173
摘要:
经过60多年研制与发展,我国已基本建立了完整的核燃料循环体系及相应的工厂和设施。但在这一领域尚缺少设备抗震分级的统一标准,为核燃料循环设施的设备设计、制造、监管和过程控制带来隐患,这也成为我国核燃料循环设施发展的瓶颈,因此目前亟须为核燃料循环设施物项(机械设备、电气设备)建立统一的设备抗震分级标准,以此来规范安全级物项的设计、制造、质保和监管。本文通过详细调研我国各设计院的抗震设计情况,总结提出了基于我国国情的抗震分级及设防要求,为相关研究提供参考。
经过60多年研制与发展,我国已基本建立了完整的核燃料循环体系及相应的工厂和设施。但在这一领域尚缺少设备抗震分级的统一标准,为核燃料循环设施的设备设计、制造、监管和过程控制带来隐患,这也成为我国核燃料循环设施发展的瓶颈,因此目前亟须为核燃料循环设施物项(机械设备、电气设备)建立统一的设备抗震分级标准,以此来规范安全级物项的设计、制造、质保和监管。本文通过详细调研我国各设计院的抗震设计情况,总结提出了基于我国国情的抗震分级及设防要求,为相关研究提供参考。
2025, 20(2): 372-384.
doi: 10.11899/zzfy20240505
摘要:
目前核电领域考虑地震动非相干性的土-结相互作用分析主要为频域方法,其在考虑土体强非线性和接触非线性方面存在不足。本文考虑时域分析方法,首先采用相干效应分解和多尺度方案对采用Cholesky分解的非相干地震动条件模拟方法进行了改进,使其可稳定高效地模拟大规模非相干地震动场;然后以非相干地震动场作为输入,采用PASSI方法进行土-结相互作用分析。采用上述时域方法,以CAP1400核电结构模型为例,分析了地震动非相干性对其反应的影响。算例结果表明:(1)本文提出的条件模拟改进方法可以用于大规模非相干地震动场的模拟,模拟结果可以反映所采用的相干模型特性;(2)地震动非相干性加大了核电结构位移反应峰值,在控制点地震动主要频段范围,地震动非相干性略微增加了低频加速度反应谱值,减小了中高频反应谱值。
目前核电领域考虑地震动非相干性的土-结相互作用分析主要为频域方法,其在考虑土体强非线性和接触非线性方面存在不足。本文考虑时域分析方法,首先采用相干效应分解和多尺度方案对采用Cholesky分解的非相干地震动条件模拟方法进行了改进,使其可稳定高效地模拟大规模非相干地震动场;然后以非相干地震动场作为输入,采用PASSI方法进行土-结相互作用分析。采用上述时域方法,以CAP1400核电结构模型为例,分析了地震动非相干性对其反应的影响。算例结果表明:(1)本文提出的条件模拟改进方法可以用于大规模非相干地震动场的模拟,模拟结果可以反映所采用的相干模型特性;(2)地震动非相干性加大了核电结构位移反应峰值,在控制点地震动主要频段范围,地震动非相干性略微增加了低频加速度反应谱值,减小了中高频反应谱值。
2025, 20(2): 385-398.
doi: 10.11899/zzfy20240506
摘要:
振动台模型试验是研究工程结构动力响应的重要手段,模型箱作为隧道工程振动台模型试验的关键因素,其设计的合理性成为确保振动台试验准确的关键。本文依托某高烈度地震区穿越大型断裂带隧道工程,以穿越多破裂面断层隧道为对象,根据多破裂断层相互作用力学机理,基于弹性地基理论构建了集中质量力学模型,并设计了针对穿越多破裂面断层隧道的动力模型箱。利用有限元软件对模型箱进行模态频响分析,得出模型箱-围岩-衬砌在地震动作用下不发生共振,各阶振型之间不会产生影响。运用该模型箱进行振动台试验并验证合理性,结果表明,围岩纵向范围同高度处,破碎带与上下盘交界处附近土体加速度峰值最大,显示出在地震作用下穿越多破裂面断层隧道与围岩的加速度响应特性;隧道衬砌共轭45°相对位移及围岩-衬砌拱顶接触应力峰值最大值出现在破碎带与上下盘交界处附近,最小值出现在破碎带内部破裂面处,破碎带边缘所受地震力最大;力学模型理论与试验的应力释放量相对差值仅为6.7%、0.5%,位移相差均在10%以内,验证了模型箱能较好地模拟穿越多破裂面断层隧道的错震特性;采用2-范数偏差μ对边界效应进行量化,μ总体小于0.2,并随着PGA的增大先增加后减小并趋于稳定,说明模型箱边界效应影响较小,能够模拟地震时多破裂面断层运动特性,验证了试验结果的可靠性,研究结果可为此类模型箱设计提供参考。
振动台模型试验是研究工程结构动力响应的重要手段,模型箱作为隧道工程振动台模型试验的关键因素,其设计的合理性成为确保振动台试验准确的关键。本文依托某高烈度地震区穿越大型断裂带隧道工程,以穿越多破裂面断层隧道为对象,根据多破裂断层相互作用力学机理,基于弹性地基理论构建了集中质量力学模型,并设计了针对穿越多破裂面断层隧道的动力模型箱。利用有限元软件对模型箱进行模态频响分析,得出模型箱-围岩-衬砌在地震动作用下不发生共振,各阶振型之间不会产生影响。运用该模型箱进行振动台试验并验证合理性,结果表明,围岩纵向范围同高度处,破碎带与上下盘交界处附近土体加速度峰值最大,显示出在地震作用下穿越多破裂面断层隧道与围岩的加速度响应特性;隧道衬砌共轭45°相对位移及围岩-衬砌拱顶接触应力峰值最大值出现在破碎带与上下盘交界处附近,最小值出现在破碎带内部破裂面处,破碎带边缘所受地震力最大;力学模型理论与试验的应力释放量相对差值仅为6.7%、0.5%,位移相差均在10%以内,验证了模型箱能较好地模拟穿越多破裂面断层隧道的错震特性;采用2-范数偏差μ对边界效应进行量化,μ总体小于0.2,并随着PGA的增大先增加后减小并趋于稳定,说明模型箱边界效应影响较小,能够模拟地震时多破裂面断层运动特性,验证了试验结果的可靠性,研究结果可为此类模型箱设计提供参考。
2025, 20(2): 399-408.
doi: 10.11899/zzfy20240124
摘要:
根据现有的抗震设计方法,结构基本周期是确定设计地震力大小的关键因素。中小学外廊式教学楼在历次地震中均表现出较严重的震害。为研究教学楼实际自振周期与结构设计模型的差异,本文选取4栋典型的外廊式教学楼,采用脉动法测试结构一阶平动和扭转的固有周期,并根据原设计图纸复现了结构计算模型。测试和分析结果表明:实测纵横向自振周期较经验公式估算的周期小,相差范围在8.9%~28.0%,且经验公式估算的周期介于实测值与结构分析软件计算值之间。填充墙的数量和布置形式会对结构3个方向的自振周期产生不同程度的影响,填充墙对横向的刚度作用远大于纵向,同时横墙也使结构抗扭刚度得到极大的提高。不考虑填充墙的计算模型和经验公式均无法同时准确评估3个方向的自振周期。结构整体的抗震性能与填充墙的分布形式和连接方式都有重要的联系,设计中应充分考虑填充墙的布置及参与工作状态,才能准确评估结构抗震设计及结构承载力。
根据现有的抗震设计方法,结构基本周期是确定设计地震力大小的关键因素。中小学外廊式教学楼在历次地震中均表现出较严重的震害。为研究教学楼实际自振周期与结构设计模型的差异,本文选取4栋典型的外廊式教学楼,采用脉动法测试结构一阶平动和扭转的固有周期,并根据原设计图纸复现了结构计算模型。测试和分析结果表明:实测纵横向自振周期较经验公式估算的周期小,相差范围在8.9%~28.0%,且经验公式估算的周期介于实测值与结构分析软件计算值之间。填充墙的数量和布置形式会对结构3个方向的自振周期产生不同程度的影响,填充墙对横向的刚度作用远大于纵向,同时横墙也使结构抗扭刚度得到极大的提高。不考虑填充墙的计算模型和经验公式均无法同时准确评估3个方向的自振周期。结构整体的抗震性能与填充墙的分布形式和连接方式都有重要的联系,设计中应充分考虑填充墙的布置及参与工作状态,才能准确评估结构抗震设计及结构承载力。
2025, 20(2): 409-416.
doi: 10.11899/zzfy20240154
摘要:
近年来国内外时常发生地震对石油天然气管道的破坏事件,而架空管道是油气管线输送工程的薄弱环节,为保证架空管道在地震作用下的安全性,采用数值模拟方法建立架空输油管道有限元模型,研究架空管道地震破坏特征,分析架空管道典型破坏模式。研究结果表明,在地震作用下,较高的活动支架可能会发生倒塌,管道弯折处为较易发生破坏的部位。管道与管架之间的相对滑动也可能造成管道掉落,设计时应同时考虑管道及管架抗震问题。
近年来国内外时常发生地震对石油天然气管道的破坏事件,而架空管道是油气管线输送工程的薄弱环节,为保证架空管道在地震作用下的安全性,采用数值模拟方法建立架空输油管道有限元模型,研究架空管道地震破坏特征,分析架空管道典型破坏模式。研究结果表明,在地震作用下,较高的活动支架可能会发生倒塌,管道弯折处为较易发生破坏的部位。管道与管架之间的相对滑动也可能造成管道掉落,设计时应同时考虑管道及管架抗震问题。
2025, 20(2): 417-429.
doi: 10.11899/zzfy20240237
摘要:
为系统研究材料性能劣化对钢筋混凝土桥墩抗震性能及地震易损性的影响,确保其合理的抗震设计,首先建立了钢筋混凝土铁路重力式桥墩有限元模型,分析了材料性能劣化对重力式桥墩抗震性能的影响规律;其次在验证了有限元建模方法正确性的基础上,对钢筋混凝土重力式桥墩进行了IDA时程分析,并对96条地震波作用下桥墩地震反应的平均值进行线性回归分析,通过建立易损性曲线得到桥梁在不同服役时间桥墩的地震破坏概率。结果表明,材料性能劣化将显著减小钢筋混凝土重力式桥墩的水平承载力、等效刚度和耗能能力,但是会增大桥墩的位移延性系数;随着桥梁服役时间和地震动强度的增大,桥墩的地震响应及地震破坏概率均呈增加趋势,尤其是严重破坏和完全破坏的概率增幅较大。因此,在对特殊复杂环境中钢筋混凝土桥梁进行抗震设计时,应充分考虑材料性能劣化对其抗震性能产生的不利影响。
为系统研究材料性能劣化对钢筋混凝土桥墩抗震性能及地震易损性的影响,确保其合理的抗震设计,首先建立了钢筋混凝土铁路重力式桥墩有限元模型,分析了材料性能劣化对重力式桥墩抗震性能的影响规律;其次在验证了有限元建模方法正确性的基础上,对钢筋混凝土重力式桥墩进行了IDA时程分析,并对96条地震波作用下桥墩地震反应的平均值进行线性回归分析,通过建立易损性曲线得到桥梁在不同服役时间桥墩的地震破坏概率。结果表明,材料性能劣化将显著减小钢筋混凝土重力式桥墩的水平承载力、等效刚度和耗能能力,但是会增大桥墩的位移延性系数;随着桥梁服役时间和地震动强度的增大,桥墩的地震响应及地震破坏概率均呈增加趋势,尤其是严重破坏和完全破坏的概率增幅较大。因此,在对特殊复杂环境中钢筋混凝土桥梁进行抗震设计时,应充分考虑材料性能劣化对其抗震性能产生的不利影响。
2025, 20(2): 430-440.
doi: 10.11899/zzfy20240243
摘要:
破坏性地震常伴随地震次生灾害,后果严重。地铁系统作为城市重要通行设施,研究其在地震次生灾害下的应急疏散十分必要。本文以地震次生火灾为例,基于地震次生火灾特点,深入探讨地铁站人员疏散情况。利用Pyrosim软件建立地震次生火灾模型,分析地铁站内部温度、CO浓度、能见度等因素的变化,确定影响人员疏散的关键因素。在此基础上,使用Pathfinder软件建立人员疏散模型,研究关键因素人员疏散速度的影响,从而获得更准确的疏散动态。研究结果表明,能见度是影响人员疏散的关键因素;此外,楼/扶梯处能见度下降导致疏散速度降低,尤其是在靠近火源位置的楼/扶梯上,滞留时间显著增加。
破坏性地震常伴随地震次生灾害,后果严重。地铁系统作为城市重要通行设施,研究其在地震次生灾害下的应急疏散十分必要。本文以地震次生火灾为例,基于地震次生火灾特点,深入探讨地铁站人员疏散情况。利用Pyrosim软件建立地震次生火灾模型,分析地铁站内部温度、CO浓度、能见度等因素的变化,确定影响人员疏散的关键因素。在此基础上,使用Pathfinder软件建立人员疏散模型,研究关键因素人员疏散速度的影响,从而获得更准确的疏散动态。研究结果表明,能见度是影响人员疏散的关键因素;此外,楼/扶梯处能见度下降导致疏散速度降低,尤其是在靠近火源位置的楼/扶梯上,滞留时间显著增加。
2025, 20(2): 441-450.
doi: 10.11899/zzfy20230004
摘要:
为研究考虑边缘效应的电容式地震加速度传感器输出特性,将理论分析与计算机数值模拟相结合,利用保角变换法、格林函数法和MATLAB软件,对考虑边缘效应的平行板电容器电场和电容进行讨论,并研究电容式地震加速度传感器的输出特性,分析了传感器误差随参数的变化情况,讨论了影响其输出特性的因素,给出了传感器参数的取值范围,明确了改善地震加速度传感器输出特性的途径,并通过变压器桥式电路实现了对地震加速度的测量。
为研究考虑边缘效应的电容式地震加速度传感器输出特性,将理论分析与计算机数值模拟相结合,利用保角变换法、格林函数法和MATLAB软件,对考虑边缘效应的平行板电容器电场和电容进行讨论,并研究电容式地震加速度传感器的输出特性,分析了传感器误差随参数的变化情况,讨论了影响其输出特性的因素,给出了传感器参数的取值范围,明确了改善地震加速度传感器输出特性的途径,并通过变压器桥式电路实现了对地震加速度的测量。
Email alert
RSS
摘要
HTML全文
PDF 5307KB